Budapest, XV.kerület

 

Ingatlan adatai

Irányár: 164 000 000 Ft
Típus: ház
Kategória: eladó
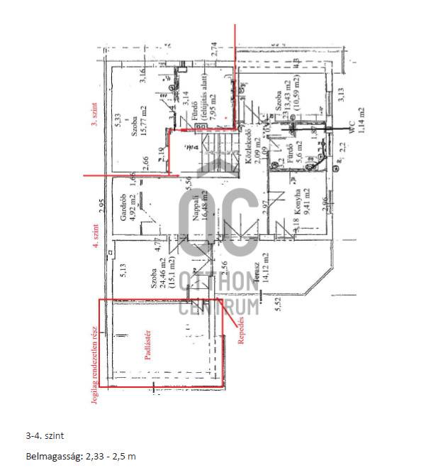
Alapterület: 271 m2
Fűtés: -
Állapota: felújítást igényel
Szobák száma: 5
Építés éve: 1990
Szintek száma: -

Részletes leírás

Eladó egy belső 3 szintes, szinteltolásos kialakítású családi ház, amely nagy tereinek köszönhetően ideális többgenerációs otthonnak vagy akár befektetésnek is.A 789 m²-es telken fekvő ingatlan nettó 270,7 m² alapterületű, 5 szobával, beépített tetőtérrel és több mint 30 m² terasszal rendelkezik. A tágas nappali–étkező–konyha tér jól használható, a felső szinteken külön lakrészek is kialakíthatók.A ház tégla építésű, fűtését két gázkazán biztosítja radiátorokkal és padlófűtéssel, emellett klíma és kandalló is rendelkezésre áll. A telken medence, garázs és tárolók találhatóak.Az ingatlan átlagos állapotú, felújítandó, így új tulajdonosa saját elképzelései szerint alakíthatja ki.

További adatok

Telekterület: 789 m2
Kert mérete: 789 m2
Erkély mérete: 31 m2
Felszereltség: -
Parkolás: -
Kilátás: -
Egyéb extrák:  
-
hirdetés

Hirdető adatai

Hirdető neve: Otthon Centrum
Kapcsolattartó: Sike Zsófia
Hirdető telefonszáma: +36 70 469 3356
Honlap: -


Ingatlan hirdetés ajánlása

Copyright © Euro Ingatlanbank