Budapest, XIV.kerület

 

Ingatlan adatai

Irányár: 114 990 000 Ft
Típus: ház
Kategória: eladó
Alapterület: 71 m2
Fűtés: gáz (cirko)
Állapota: -
Szobák száma: 2
Építés éve: 1959
Szintek száma: -

Részletes leírás

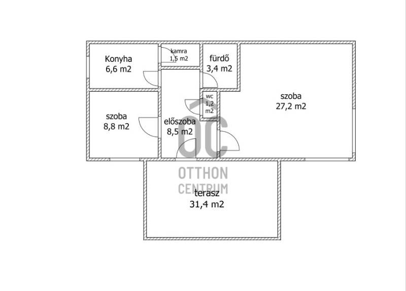
Eladó Budapest XIV. kerületében a Szomolány utcában egy sarok telken elhelyezkedő közepes állapotú 75 négyzetméteres tégla építésű családi ház.Az ingatlan dél nyugati fekvésű rendkívül világos. Telek mérete: 396 négyzetméter.Főbb jellemzői az ingatlannak:– 2 külön nyíló szoba– Klímával felszerelt– Tehermentes– Fúrt kút– Garázs, pinceBővítési lehetőség:A tetőtér beépíthető, így az ingatlan tovább növelhető. Ideális akár nagyobb család számára is vagy befektetésnek is tökéletes választás. A környék nagyon csendes, jól megközelíthető.Az ingatlan jogilag rendezett hitelre is megvásárolható. Megtekinteni rugalmasan van lehetőség.Hívjon bizalommal. Energetikai tanúsítvány: I minősítés

További adatok

Telekterület: 396 m2
Kert mérete: 396 m2
Erkély mérete: -
Felszereltség: -
Parkolás: -
Kilátás: -
Egyéb extrák:  
-
hirdetés

Hirdető adatai

Hirdető neve: Otthon Centrum
Kapcsolattartó: Posváncz Katalin
Hirdető telefonszáma: +36 70 716 9671
Honlap: -


Ingatlan hirdetés ajánlása

Copyright © Euro Ingatlanbank