Budapest, XXII.kerület

 

Ingatlan adatai

Irányár: 79 500 000 Ft
Típus: ház
Kategória: eladó
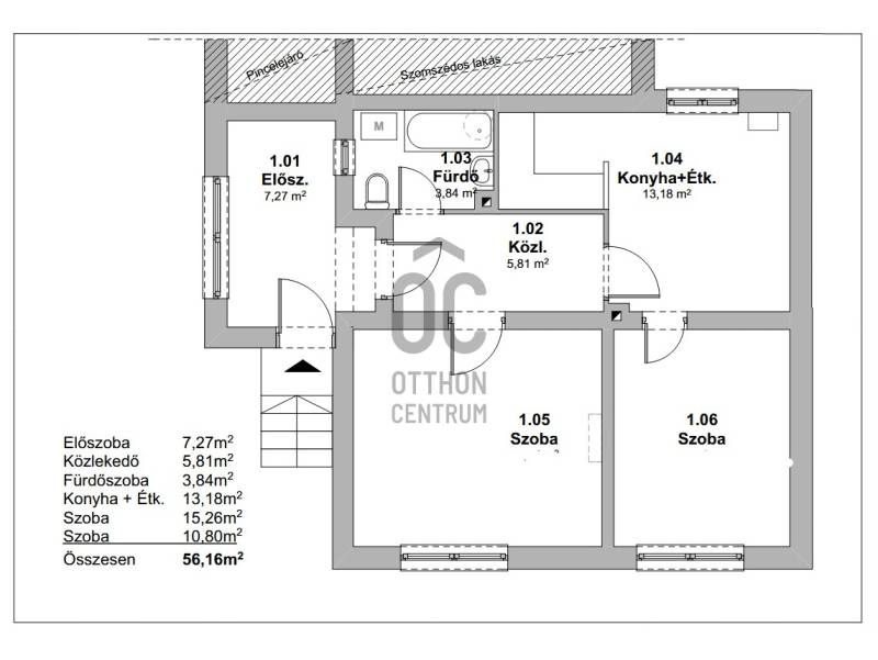
Alapterület: 56 m2
Fűtés: gáz (cirko)
Állapota: -
Szobák száma: 2
Építés éve: 1960
Szintek száma: -

Részletes leírás

22.kerületben, Budafok kertvárosi részén, közkedvelt utcában megvételre kínálok egy földszintes házrészt (lakást).Három lakásos társasházon belül az eladó ingatlan a földszinten helyezkedik el.Részlegesen már felújították, a nyílászárókat, parkettát és a kazánt kicserélték, jelenleg a fürdőszoba és az előszoba még felújítást igényel.Saját, lekerített kertrész és pince tartozik a lakáshoz. Kellemes, családias hangulatú házrész, kedves szomszédokkal. A kertet és a kertészkedést kedvelőknek kifejezetten a figyelmébe ajánlom.Jogilag rendezett, osztatlan közös tulajdonú,ügyvédi ellenjegyzéssel ellátott használati megosztással rendelkezik.Időseknek, de fiatal párnak is, kezdő lakásként ideális otthona lehet.Rugalmasan megtekinthető, azonnal költözhető.

További adatok

Telekterület: 200 m2
Kert mérete: 200 m2
Erkély mérete: -
Felszereltség: -
Parkolás: -
Kilátás: kertre néző
Egyéb extrák:  
-
hirdetés

Hirdető adatai

Hirdető neve: Otthon Centrum
Kapcsolattartó: Boros Ildikó
Hirdető telefonszáma: +36 70 716 8116
Honlap: -


Ingatlan hirdetés ajánlása

Copyright © Euro Ingatlanbank