Budapest, XIV.kerület

 

Ingatlan adatai

Irányár: 144 900 000 Ft
Típus: ház
Kategória: eladó
Alapterület: 96 m2
Fűtés: gáz (cirko)
Állapota: -
Szobák száma: 4
Építés éve: 1986
Szintek száma: -

Részletes leírás

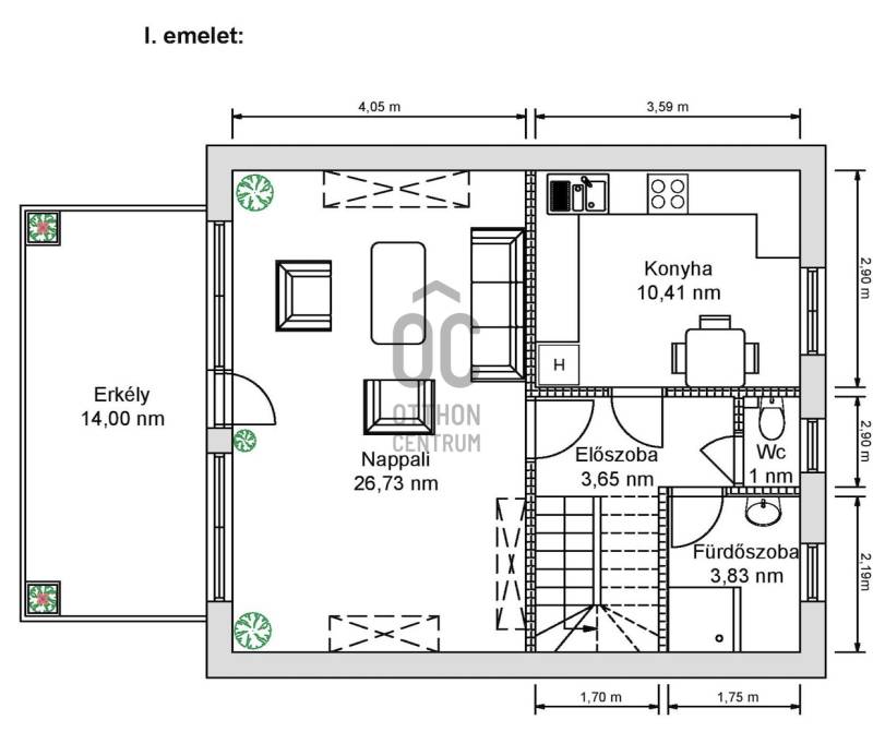
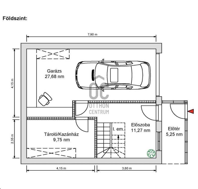
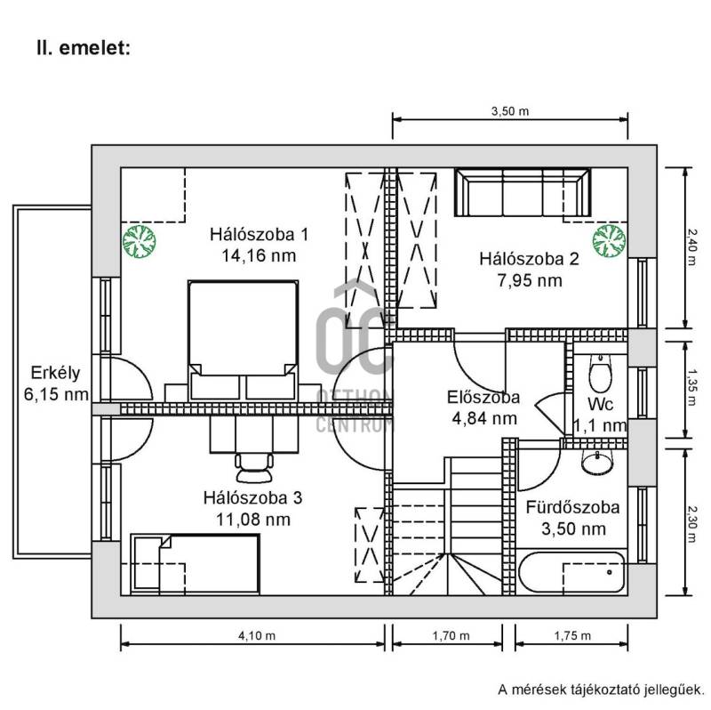
Prémium hangulatú sorházi lakás eladó Budapest XIV. kerület zöldövezeti részén – Alsórákos Budapest XIV. kerületében, Alsórákos csendes, zöldövezeti utcájában eladó egy 3 szintes, 4 szobás, műszakilag felújított sorházi otthon, 96 m² lakótérrel (garázs, nagy terasz és erkély ezen felül).A kiváló lokáció miatt ideális választás családok számára:villamos és busz pár perc sétáraóvoda, iskola közelbenzöld, nyugodt kertvárosi környezetkiváló infrastruktúraAz ingatlan 10 cm grafitos hőszigeteléssel, valamint megújult víz-, gáz-, fűtés- és lefolyórendszerrel rendelkezik. A cirkó fűtés és a napkollektoros rendszer együtt biztosítják a kedvező fenntartási költségeket.Kiemelt érték a saját garázs szerelőaknával, amely ritkaság a környéken.

További adatok

Telekterület: 234 m2
Kert mérete: 234 m2
Erkély mérete: -
Felszereltség: -
Parkolás: -
Kilátás: -
Egyéb extrák:  
-
hirdetés

Hirdető adatai

Hirdető neve: Otthon Centrum
Kapcsolattartó: Szalontai Árpád
Hirdető telefonszáma: +36 70 716 8556
Honlap: -


Ingatlan hirdetés ajánlása

Copyright © Euro Ingatlanbank