Budapest, XVIII.kerület

 

Ingatlan adatai

Irányár: 159 600 000 Ft
Típus: ház
Kategória: eladó
Alapterület: 150 m2
Fűtés: gáz (cirko)
Állapota: új
Szobák száma: 4
Építés éve: 2026
Szintek száma: -

Részletes leírás

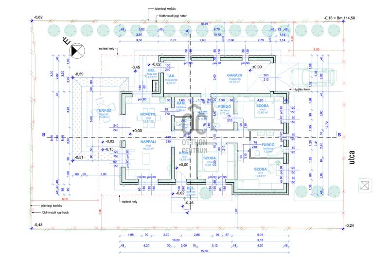
XVIII.kerületben, Pestszentimre családi házas övezetében épül ez a gyönyörű ingatlan. A ház egy 541 m2-es telken valósul meg, így szép, nagy kert is tartozik hozzá.Az egyszintes ház nappali + 3 szobás, 2 fürdőszobával, hatalmas terasszal épül.A házhoz tartozik egy garázs is.A szomszéd házak szépek, rendezettek.Az építési vállalkozó a környéken több referenciával is rendelkezikKözlekedés kiváló, 5 percen belül elérhetőek a buszok, melyek Népligetbe illetve Boráros térre mennek.Sétatávolságra van az óvoda, iskola, orvosi rendelő, csakúgy, mint egy Lidl is.Várható (legkésőbbi) átadás : 2027. márc. 31.

További adatok

Telekterület: 541 m2
Kert mérete: 541 m2
Erkély mérete: -
Felszereltség: -
Parkolás: -
Kilátás: -
Egyéb extrák:  
-
hirdetés

Hirdető adatai

Hirdető neve: Otthon Centrum
Kapcsolattartó: Ceglédi Katalin
Hirdető telefonszáma: +36 70 461 9271
Honlap: -


Ingatlan hirdetés ajánlása

Copyright © Euro Ingatlanbank