Budapest, XVI.kerület

 

Ingatlan adatai

Irányár: 279 000 000 Ft
Típus: ház
Kategória: eladó
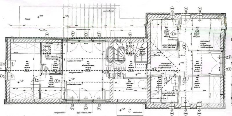
Alapterület: 207 m2
Fűtés: -
Állapota: -
Szobák száma: 8
Építés éve: 2023
Szintek száma: -

Részletes leírás

Ritka lehetőség a piacon – 2024-ben épült, sokoldalúan alakítható családi ház!Szeretne egy olyan 2024-ben épült, minőségi kivitelezésű családi házat, amely egyszerre kínál tágas életteret és kivételes befektetési lehetőséget?Ez az ingatlan akár 4 különálló lakássá alakítható, vagy egyben maradva egy impozáns, 7 szobás otthonként is funkcionálhat – ami valódi ritkaság a mai kínálatban!Az ingatlan egy csendes utcában található, mégis kiváló közlekedési  lehetőségekkel rendelkezik – így ideális választás azok számára, akik a nyugalmat nem szeretnék kompromisszumokkal megoldani.Az építésnek és a minőségi kivitelezésnek köszönhetően az új tulajdonos egy korszerű, energiatudatos és hosszú távon értékálló ingatlan birtokosa lehet.Az átgondolt kialakítás lehetővé teszi:- Több generáció kényelmes együttélését,- Külön bejáratú lakrészek létrehozását,- Akár kiadásban vagy vállalkozásban történő hasznosítást is.Képzelje el, hogy:✔ a család együtt, mégis külön élhet✔ a gyerekek, nagyszülők vagy akár felnőtté váló gyermekei saját életteret kapnak✔ befektetésként több lakrészből stabil bevételt termel✔ mindezt egy modern, kényelmi funkciókkal felszerelt otthonbanEz az ingatlan nem csupán egy ház – hanem élethelyzetekhez igazítható jövőbiztos megoldás.Műszaki extrák:- Autótöltő- Vízlágyító berendezés- Hőszivattyú, mennyezet hűtő-fűtő funkcióval, ami szobánként külön vezérelhető- 240 cm magas beltéri ajtók, prémium minőségben- A földszint bal oldali lakása akadálymentesített- 3 konyha, 1 nagyobb és 2 kisebb, de ha valaki 4 lakásban gondolkozik, akkor van lehetőség még konyha kialakítására, mert a vízkiépítés is megtörtént- Gondozásmentes kerítés- Elektromos nagykapu - A kiskapuhoz lakásonként ki van építve a kapunyitó- Beépített redőnytok kiépítése, elektromos kiállással- Tetőtér minőségi, új trend szerinti befúvásos szigetelés- 15 centi kőzetgyapot külső szigetelés- Mindenhol padlófűtésAz ilyen adottságokkal rendelkező, új építésű, sokoldalúan alakítható ingatlanok ritkán kerülnek piacra.Hívjon bizalommal, és nézze meg személyesen ezt a kivételes lehetőséget – akár saját otthonként, akár befektetésként gondolkodik!

További adatok

Telekterület: 637 m2
Kert mérete: 637 m2
Erkély mérete: -
Felszereltség: -
Parkolás: -
Kilátás: -
Egyéb extrák:  
-
hirdetés

Hirdető adatai

Hirdető neve: Otthon Centrum
Kapcsolattartó: Mészáros Anita
Hirdető telefonszáma: +36 70 388 5346
Honlap: -


Ingatlan hirdetés ajánlása

Copyright © Euro Ingatlanbank