Pest megye, Gyál

 

Ingatlan adatai

Irányár: 54 900 000 Ft
Típus: telek
Kategória: eladó
Alapterület: 1 019 m2
Fűtés: -
Állapota: -
Szobák száma: -
Építés éve: -
Szintek száma: -

Részletes leírás

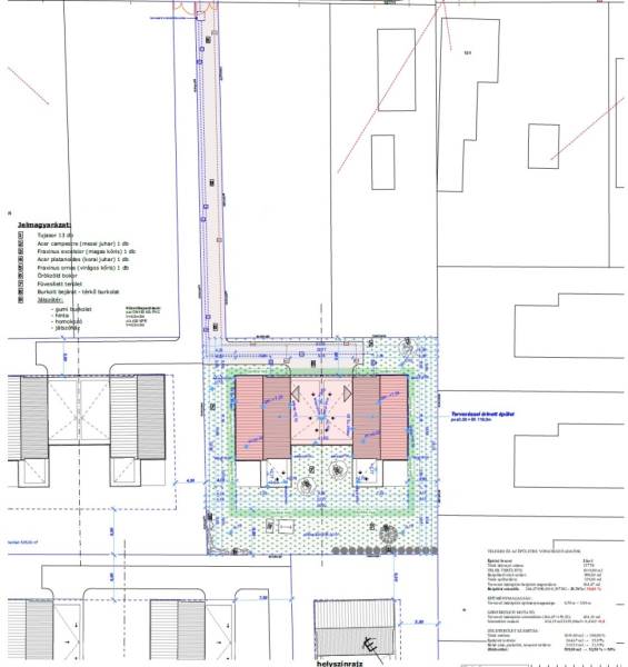
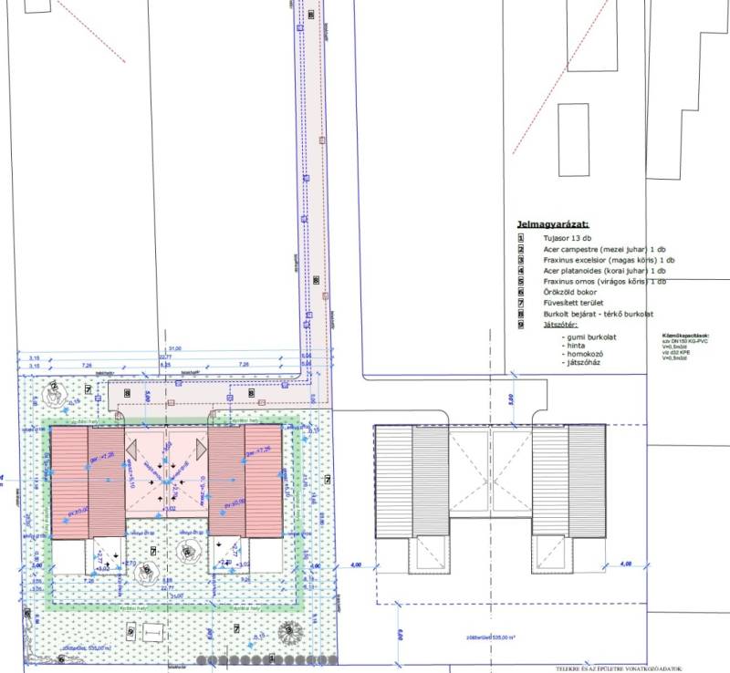
REMEK LEHETŐSÉG GYÁLON, CSAK NÁLUNK, ÜRES ÉPÍTÉSI TELKEK! Gyálon az Egressy út - Venyige köz környezetében, eladásra kínálunk 2 db. egymás mellett lévő építési telket egyben, vagy külön-külön is.Igény szerint komplett engedélyeztetett tervekkel 2 db. ikerház megépítésére, összesen 4 db. lakásra! A víz csatorna bevezetés folyamatban és az elektromos órafogadó kiépítés szintén folyamatban + az EON hálózatfejlesztési hozzájárulás is benne van az árban!Az áramot elviekben 2027. májusában hozzák, erről írásos EON papírja is van a tulajdonosnak.A telkek megközelíthetősége egy saját-privát nyeles részen lehetséges, amely 6 méter széles.TELEKRE ÉS AZ ÉPÜLETRE VONATKOZÓ ADATOK:Építési övezet: Lke-1TELEK TERÜLETE: 1019,00 m2Beépíthető telek terület: 890,00 m2Telek nyélterülete: 129,00 m2Tervezett lakóépület beépített alapterülete: 264,67 m2Beépítési százalék: 264,67/890,00=0,297382 - 29,74%< 30,00 %ÉPÍTMÉNYMAGASSÁG :Tervezett lakóépület építménymagassága: 4,58 m < 5,00 mSZINTERÜLETI MUTATÓ:Tervezett lakóépület szintterülete (264,67+159,52): 424,19 m2Szinterületi mutató: 424,19 m2/1019,00m2= 0,4162 50%A telkek eladási ára darabonként: 54,9 MFt./db.Információk szerint, az Egressy út teljes felújítása-kiszélesítése-átépítése 2028-ban várható.Az ingatlan részletes ismertetése és bemutatása előre egyeztetett időpontban lehetséges, melyet nagyon rugalmasan kezelünk, akár HÉTVÉGÉN is.További kérdéseivel kapcsolatban várom a jelentkezését.Amennyiben Önnek a vásárláshoz szüksége lenne hitelre, babaváró kölcsönre, lakástakarékra, stb., kezdeményezheti a kapcsolatfelvételt bankfüggetlen hitelügyintézőinkkel, teljesen DÍJMENTESEN.Közel 25 év szakmai tapasztalattal rendelkezem, eladó vagy kiadó ingatlana értékesítése vagy bérbeadása esetén, készséggel állok az Ön rendelkezésére is, keressen bizalommal.

További adatok

Telekterület: 1 019 m2
Kert mérete: -
Erkély mérete: -
Felszereltség: -
Parkolás: -
Kilátás: -
Egyéb extrák:  
-
hirdetés

Hirdető adatai

Hirdető neve: GDN Ingatlanhálózat
Kapcsolattartó: Nyegrutz Tamás
Hirdető telefonszáma: +36-30-560-5587
Honlap: -


Ingatlan hirdetés ajánlása

Copyright © Euro Ingatlanbank