Budapest, XIV.kerület

 

Ingatlan adatai

Irányár: 169 900 000 Ft
Típus: ház
Kategória: eladó
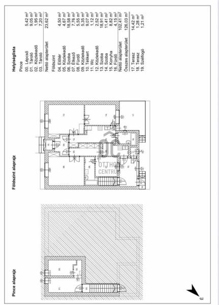
Alapterület: 103 m2
Fűtés: gáz (cirko)
Állapota: -
Szobák száma: 3
Építés éve: 1975
Szintek száma: -

Részletes leírás

Budapest 14. kerületében, Alsórákos csendes és barátságos utcájában kínálom eladásra ezt a 103 négyzetméteres, használt házat, amely ideális választás lehet családok számára, vagy azoknak, akik befektetési céllal keresnek ingatlant. A 521 négyzetméteres telek lehetőséget biztosít a szabadtéri tevékenységekre, kertészkedésre, vagy akár egy kis pihenőhely kialakítására is, ahol a felnőttek és gyerekek egyaránt élvezhetik a szabadban eltöltött időt. A ház 3 szobával és 1 fürdőszobával rendelkezik, amelyek kényelmes teret biztosítanak a mindennapi élethez. A fűtés gáz (cirko) rendszerrel megoldott, amely biztosítja a kellemes hőmérsékletet a hideg téli hónapokban. Az Alsórákos városrész nemcsak a nyugalom szigete, hanem a környék infrastruktúrája is kiemelkedő. A közlekedés szempontjából kiváló elhelyezkedésének köszönhetően könnyen megközelíthetők a város fontosabb pontjai. A tömegközlekedési lehetőségek, mint például a buszjáratok, gyors és kényelmes közlekedést biztosítanak, így a napi ingázás sem jelent problémát. Ezen kívül a környéken található boltok, iskolák és egészségügyi intézmények mind hozzájárulnak ahhoz, hogy a mindennapi élet kényelmesen és gördülékenyen zajlódjon. Érdeklődés esetén keressen, akár hétvégén is!

További adatok

Telekterület: 521 m2
Kert mérete: 521 m2
Erkély mérete: -
Felszereltség: -
Parkolás: -
Kilátás: -
Egyéb extrák:  
-
hirdetés

Hirdető adatai

Hirdető neve: Otthon Centrum
Kapcsolattartó: Vinnay Csaba
Hirdető telefonszáma: +36 70 469 3566
Honlap: -


Ingatlan hirdetés ajánlása

Copyright © Euro Ingatlanbank