Budapest, XXIII.kerület

 

Ingatlan adatai

Irányár: 124 990 000 Ft
Típus: ház
Kategória: eladó
Alapterület: 173 m2
Fűtés: gáz (cirko)
Állapota: -
Szobák száma: 4
Építés éve: 1992
Szintek száma: -

Részletes leírás

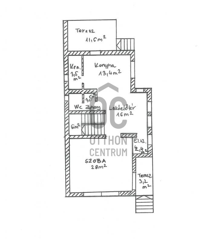
Soroksár adottságai egyedülállóak: természetközeli és karnyújtásnyira a város, ahová még mindig ebből az irányból a legjobb bejutni autóval és a tömegközlekedés is elfogadható (vonattal 22 perc a Keleti, HÉV-vel 17 perc a Közvágóhíd). Az M0 közelsége miatt pedig az országos utazások is könnyen indulnak. A legnagyobb zöldterülettel rendelkező kerület. Jó iskolákkal, sok óvodával, modern játszóterekkel és számtalan bevásárlási lehetőséggel - ebből a szempontból még Budaörsöt is előzi. (Van itt Auchan, Decathlon, IKEA, KIKA, Obi, MediaMarkt, Office Depot, Brandon bababolt, Walter horgászbolt, 2 Aldi és 2 Lidl, Tesco extra meg számtalan kisebb üzlet .Kisgyermekeseknek ideális. Nem véletlen, hogy 2018-2021 közt itt épült a fővárosban a legtöbb CSOK-os ház. A Duna- és a patakpart, a táling és a Molnár-sziget mind megannyi kis túra-variációra ad kimeríthetetlen lehetőséget.Itt kínálok eladásra egy 1990-s években épült 173nm-s családi házat.Rezsije rendkívül gazdaságos, mely a 2021-ben felszerelt napelemnek is köszönhető.3 hálószoba, 1 nappali, konyha, étkező,spejz, 2 fürdőszoba , gardrób, garázs és 2 tároló is tartozik a házhoz .Az elő és hátsókerten kívül egy 11.6nm-s terasz is szolgálja a ház lakóinak kényelmét.Állapotaát tekintve, rendszeresen karbantartott ingatlanról beszélünk.Elhelyezkedése és az infrastruktúrája miatt különböző vállalkozások helyszínének is kifogástalan.Szemben egy iskola található, így kávézó, teázó, de kisbolt működtetésére is kifogástalan a hely.Mivel a belső kétszintes ház, mind a két szintjén van fürdőszoba, így a reggeli készülődés is zökkenőmentesebb.Amennyiben meg szeretné tekinteni, hívjon a hét bármely napján!

További adatok

Telekterület: 462 m2
Kert mérete: 462 m2
Erkély mérete: -
Felszereltség: -
Parkolás: -
Kilátás: -
Egyéb extrák:  
-
hirdetés

Hirdető adatai

Hirdető neve: Otthon Centrum
Kapcsolattartó: Kis Erika
Hirdető telefonszáma: +36 70 469 3201
Honlap: -


Ingatlan hirdetés ajánlása

Copyright © Euro Ingatlanbank