Pest megye, Sződ

Sződ 

Ingatlan adatai

Irányár: 26 500 000 Ft
Típus: telek
Kategória: eladó
Alapterület: 978 m2
Fűtés: -
Állapota: -
Szobák száma: -
Építés éve: -
Szintek száma: -

Részletes leírás

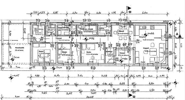
Sződön eladó egy 973 m²-es, aszfaltozott, csendes mellékutcában található építési telek!A telek 10,5 méteres utcafronttal és 25%-os beépíthetőséggel rendelkezik, így akár egy tágas, modern családi otthon is megvalósítható rajta.A legnagyobb előnye, hogy már rendelkezik érvényes építési engedéllyel egy bruttó 153 m²-es, egyszintes, könnyűszerkezetes családi ház felépítésére, és a sávalap már elkészült, így az építkezés akár azonnal folytatható.A telekre víz és villany be van vezetve, a környezet rendezett, családi házas övezet.Ideális választás mindazoknak, akik gyorsan, meglévő engedélyekkel és előkészített alapokkal szeretnének építkezni rendezett, nyugodt környezetben!További kérdéseivel, illetve megtekintési szándékával kérem keresse irodánkat.A hirdetésben szereplő adatok tájékoztató jellegűek.Az ingatlan hitelre is megvásárolható.Bankfüggetlen tanácsadóink, az ország összes pénzintézete közül gyorsan és gördülékenyen találja meg az Önnek legmegfelelőbb konstrukciót, egyedi kedvezményekkel. A hitel közvetítés díjmentes.

További adatok

Telekterület: 978 m2
Kert mérete: -
Erkély mérete: -
Felszereltség: -
Parkolás: -
Kilátás: -
Egyéb extrák:  
-
hirdetés

Hirdető adatai

Hirdető neve: MPD Hungary Kft.
Kapcsolattartó: Vede Casa Kft.
Hirdető telefonszáma: +36301096915
Honlap: -


Ingatlan hirdetés ajánlása

Copyright © Euro Ingatlanbank