Budapest, XVI.kerület

 

Ingatlan adatai

Irányár: 157 500 000 Ft
Típus: ház
Kategória: eladó
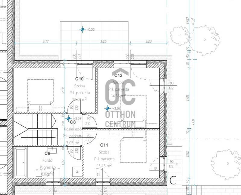
Alapterület: 116 m2
Fűtés: -
Állapota: új
Szobák száma: 4
Építés éve: 2026
Szintek száma: -

Részletes leírás

Mátyásföld közkedvelt részén, új építésű környezetben eladó ez az ikerház jellegű sorházi lakás. A telek adottságainak és a tervezésnek köszönhetően nincsen középső lakás, mindegyik szélső, ezáltal jól el vannak szeparálva egymástól az otthonok. A projekt az Íjász utcában található, amely egy csendes, átmenő forgalomtól mentes utca, mégis kíváló a lokációja. A közelben bevásárlási lehetőségek, iskola, óvoda, uszoda megtalálható, és nem messze van Mátyásföld központja rendelővel, postával, boltokkal. Magas műszaki tartalom, jó elhelyezkedés és kíválóan használható kert jellemzi az ingatlant. A sorházhoz 280m2 telekrész tartozik.A műszaki tartalomból:- Hőszivattyús fűtés padlófűtéssel- Hőszivattyús hűtés előkészítés fancoilra- Rehau Synego 80 prémium nyílaszárók- 30-as porotherm tégla külső falazat- 15cm eps külső szigetelés- modern, antracit színű Terrán Zenit cserép fedés- választható burkolatok- választható beeltéri ajtók- választható szaniterekA beruházónak és kivitelezőnek számos referencia ingatlana van a környéken.Várható átadás 2027 tavasz.További részletekért, dokumentumokért és részletes műszaki tartalomért keressen bizalommal!

További adatok

Telekterület: 295 m2
Kert mérete: 295 m2
Erkély mérete: 11 m2
Felszereltség: -
Parkolás: -
Kilátás: -
Egyéb extrák:  
-
hirdetés

Hirdető adatai

Hirdető neve: Otthon Centrum
Kapcsolattartó: Incze Róbert
Hirdető telefonszáma: +36 70 716 8121
Honlap: -


Ingatlan hirdetés ajánlása

Copyright © Euro Ingatlanbank