Budapest, XV.kerület

 

Ingatlan adatai

Irányár: 155 000 000 Ft
Típus: ház
Kategória: eladó
Alapterület: 125 m2
Fűtés: gáz (cirko)
Állapota: új
Szobák száma: 4
Építés éve: 2026
Szintek száma: -

Részletes leírás

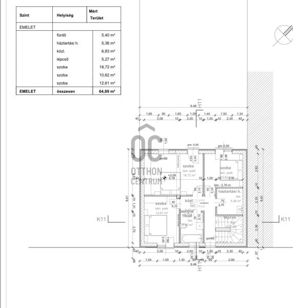
Rákospalota kedvelt, kertvárosi részén, újépítésű családi ház, referenciákkal rendelkező építtetőtől eladóA projekt folyamosan épült, várható kulcsrakész átadás 2026. nyara!De nézzük a részleteket!- 341 m2-es telek- 125 m2 nettó alapterületű, kétszintes ház- a földszinten nagy, amerikai konyhás nappali, egy mosdó és egy terasz, valamint egy garázs kapott helyett- az emeleten 3 halószoba, egy fürdőszoba, valamint egy háztartási helyiség kerül kialakításra- magas műszaki tartalom, antracit cseréptető, gázcirkó, hűtő-fűtő klíma, 3 rétegű műanyag ablakok, 15 cm-es szigetelés- a belső nyílászárók, falszínek, burkolatok, szaniterek még választhatók!- az ár tartalmazza a tereprendezést, valamint a fa kerítés elkészítését isKiváló lokáció. M3 autópálya pár perc alatt elérhető, Pólus Center, bevásárlási lehetőség 5 perc alatt elérhető. Buszmegálló a sarkon.Jöjjön, és nézze meg még ma! Kiváló lehetőség!Igény esetén bankfüggetlen szakemberünk ingyenes tanácsadással, ügyintézéssel áll rendelkezésére.

További adatok

Telekterület: 340 m2
Kert mérete: 340 m2
Erkély mérete: 22 m2
Felszereltség: -
Parkolás: -
Kilátás: -
Egyéb extrák:  
-
hirdetés

Hirdető adatai

Hirdető neve: Otthon Centrum
Kapcsolattartó: Bringye Viktória
Hirdető telefonszáma: +36 70 716 8186
Honlap: -


Ingatlan hirdetés ajánlása

Copyright © Euro Ingatlanbank