Budapest, XV.kerület

Pestújhely 

Ingatlan adatai

Irányár: 39 900 000 Ft
Típus: telek
Kategória: eladó
Alapterület: 264 m2
Fűtés: -
Állapota: -
Szobák száma: -
Építés éve: -
Szintek száma: -

Részletes leírás

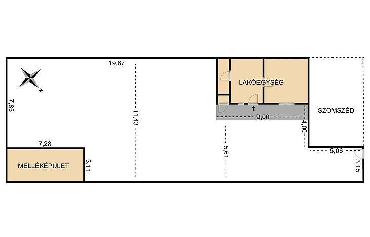
XV. KERÜLETBEN, RÁKOSPALOTÁN, ELADÓ 264 M2 TELKEN 40 M2 BONTANDÓ HÁZRÉSZA TELEK JELLEMZŐI:A telek övezeti besorolás szerint LK-2/IK-2 kategóriában helyezkedik el. Beépíthetősége 25%, a legkisebb zöld felület aránya 55%. A legnagyobb épület magassága maximum 6,5 méter. 66 nm egység lehet rajtaPARKOLÁS:Telken belül vagy díjmentesen a ház előtt, utcafrontonKÖZLEKEDÉS:Közelben a 231, 231B busz, néhány percre 96, 196, 196A, 296, 296A, 130 busz közlekedik.IRÁNYÁR: 39,9 M FTFINANSZÍROZÁS:Az ingatlan banki finanszírozással is megvásárolható, melyben irodánk ingyenes tanácsadással áll rendelkezésükre!VEVŐINK RÉSZÉRE A KÖZVETÍTÉS DÍJTALAN!!A hirdetésben szereplő adatok tájékoztatás jellegűek!

További adatok

Telekterület: 264 m2
Kert mérete: -
Erkély mérete: -
Felszereltség: -
Parkolás: -
Kilátás: -
Egyéb extrák:  
-
hirdetés

Hirdető adatai

Hirdető neve: MPD Hungary Kft.
Kapcsolattartó: Újhely Ingatlan Kft.
Hirdető telefonszáma: +36202885981
Honlap: -


Ingatlan hirdetés ajánlása

Copyright © Euro Ingatlanbank