Budapest, III.kerület

Testvérhegyen szupercsendes utcában 

Ingatlan adatai

Irányár: 269 000 000 Ft
Típus: ház
Kategória: eladó
Alapterület: 259 m2
Fűtés: -
Állapota: -
Szobák száma: 6
Építés éve: -
Szintek száma: -

Részletes leírás

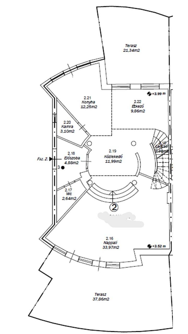
LAKJON EXKLUZÍV KÖRNYEZETBEN, ELVEHETETLEN PANORÁMÁVAL.We speak english, please, do not hesitate, just call us for further informaiton.Parliamo italino , non esitate a contattarci per qualsiasi ulteriore informazione/ necessitá.Testvérhegyen, csendes, átmenő forgalomtól mentes utcában , Budapest kiemelt körzetében , az Árpád hídtól pár percre ,eladó egy 2000-ben épült, 2020-ban részben felújított, kiváló elosztású, igényes kerttel rendelkező , napfényes, jó elosztású, 300 nettó m2-es, ALACSONY REZSIJŰ CSALÁDI OTTHON, egy SZEPARÁLT IKERFÉL, nagy teraszokkal, 610 m2-es gondozott kerttel, 2 állásos garázzsal.MŰSZAKI TARTALOM:Szerkezet: 30 cm-es poroton tégla külső falak, monolit vasbeton födémekkülső-belső Knauf hőszigetelési rendszer2 rétegű üvegezésű nyílászárókWolf állókazán+melegvíztárolópadló és radiátoros fűtés, törölköző szárítókautomata garázs+kertkapuegyedi konyha nagy, ívelt pultfelülettel, beépített gépekkelszintenként állítható riasztórendszer távfelügyelettelAz épületet az ívelt falak és lépcsők, tartóoszlopok, körgaléria és szinteltolás teszik különlegessé. Ehhez a kialakításhoz igazodnak az egyedi beépített bútorok, polcrendszerek, tárolók.Nagyméretű teraszok (É,D) kertkapcsolattalKERT:A kertben az öntözést Rainbird öntözőrendszer biztosítja.A vízhasználatot leválasztott, külön leolvasású locsolómérő méri, igy ennek használata nem terheli a csatorna számlát.A ház erttervező által tervezett, gondozott kerttel rendelkezik. Nagyon kellemes nyáron a kertben pihenni, amelynek intimitását a formatervezet növények ölelése szolgáltatja.Kerti kőgrill és külön bográcsozó hellyel, kerti gyerekjátszóval, csúszdával, hintával felszerelt.GARÁZS:A ház lakói 2 autóval a garázsba és egy autóval egy külön beállóhelyre tudnak kényelmesen parkolni.KÖZLEKEDÉS.Közeli buszmegálló, óvoda, iskola (British School, AKG), orvosi rendelő,bevásárlási lehetőségek (Tesco, Eurocenter, Praktiker, Stop Shop).A sportolást a közeli erdő, a Golf Klub, konditermek, Margitsziget közelége teszik lehetővé.A HÁZ SZINTJEI:ALSÓ SZINT28,67 m2 pihenő, sport helyiség27,79 m2 garázs 2 autó számára8,54 m2 mosókonyha, kazánház7,49 m2 szauna6,60 m2 kamra5,62 m2 kamra4,41 m2 közlekedő4,14 m2 tároló4,29 m2 tároló97,55 m2 összesenFÖLDSZINT32,53 m2 nappali26,36 m2 amerikai konyha + étkező10,41 m2 közlekedő tér5,10 m2 lépcső4,72 m2 előtér3,33 m2 kamra2,56 m2 vendég WC85,01 m2 összesenEMELET19,65 m2 szoba14,73 m2 szoba9,65 m2 szoba7,08 m2 fürdőszoba5,97 m2 fürdőszoba3,13 m2 gardrób2,90 m2 gardrób9,08 m2 galéria11,97 m2 közlekedő5,06 m2 lépcső89,22 m2 összesenTETŐTÉR60 m2 a hasznos terület az összesen 90 m2-ből, ahol nappali + amerikai konyha + étkező, hálószoba, fürdőszoba, gardrób helyezkedik el.Ezt az önálló lakásnak is megfelelő szintet igény esetén le lehet választani a háztól és kialakítható külön bejárat a kertből.Az ingatlan rugalmasan megtekinthető, egyeztetés után akár hétvégén is.

További adatok

Telekterület: 610 m2
Kert mérete: 610 m2
Erkély mérete: 30 m2
Felszereltség: -
Parkolás: -
Kilátás: -
Egyéb extrák:  
-
hirdetés

Hirdető adatai

Hirdető neve: Marianna Osztermayer
Kapcsolattartó: Osztermayer Marianna
Hirdető telefonszáma: 06306132050
Honlap: -


Ingatlan hirdetés ajánlása

Copyright © Euro Ingatlanbank