Budapest, VII.kerület

Deák tér 

Ingatlan adatai

Irányár: 1 050 000 Ft/hó
Típus: lakás (tégla)
Kategória: kiadó
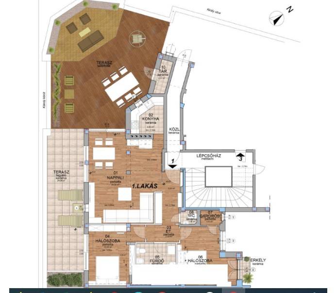
Alapterület: 81 m2
Fűtés: gáz (cirko)
Állapota: felújított
Szobák száma: 3
Építés éve: -
Szintek száma: 5

Részletes leírás

2700 EUR + 200 EUR teljes rezsi !!KIADÓ NAGY TERASZOS!!VII. kerület Deák térnél KIADÓ 2 HÁLÓSZOBÁS , 81nm-es LAKÁS hatalmas ( 79nm-es ) terasszal!Minden szoba és a terasz teljesen bútorozott.Kiváló tömegközlekedési lehetőségekkel rendelkezik (M1-es és M2-es metró, valamint több villamos és autóbusz vonal). közvetlenül az épület előtt) és a közelben biztonságos mélygarázs is található.A lakás pár percre található a Váci utcától, a Dunától, és a népszerű Vörösmarty tértől.Az apartman egy klasszikus épület legfelső emeletén található , és nagyszerű kilátást nyújt a Deák Ferenc térre és parkra valamint a Gellért- és Várhegyre.

További adatok

Telekterület: -
Kert mérete: -
Erkély mérete: -
Felszereltség: -
Parkolás: -
Kilátás: utcai
Egyéb extrák:  
-
hirdetés

Hirdető adatai

Hirdető neve: ArtsHome Ingatlaniroda
Kapcsolattartó: Murár Zsóka
Hirdető telefonszáma: 06-30-476-6997
Honlap: -


Ingatlan hirdetés ajánlása

Copyright © Euro Ingatlanbank