Budapest, III.kerület

 

Ingatlan adatai

Irányár: 389 000 000 Ft
Típus: ház
Kategória: eladó
Alapterület: 204 m2
Fűtés: -
Állapota: új
Szobák száma: 5
Építés éve: 2024
Szintek száma: -

Részletes leírás

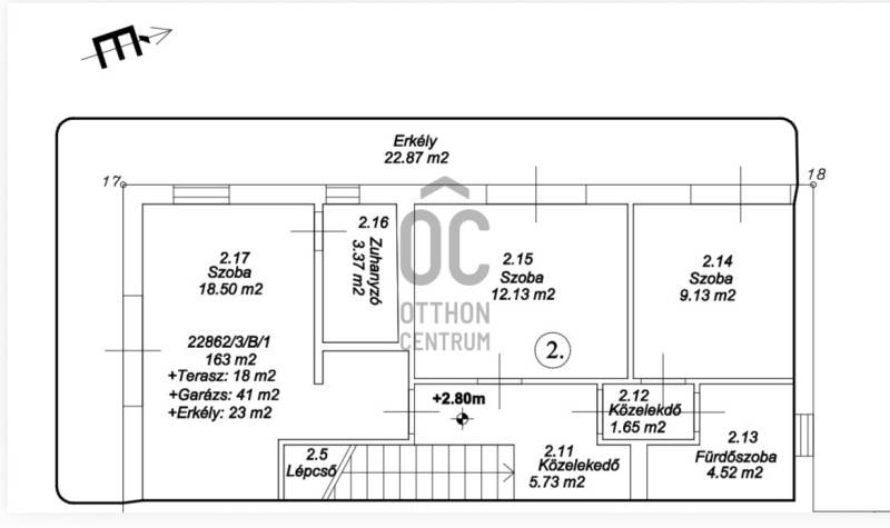
Eladásra kínálok Budapest III. kerület – Aranyhegyen 225 m²es panorámás ikerházfelet 400 m² telken medencével 5 szobás 4 fürdőszobás 2 állásos garázzsal„Vannak ingatlanok, amiket meg lehet venni. És vannak, amikbe bele lehet szeretni.”Ez az otthon az utóbbi kategória.AZ INGATLAN FŐBB JELLEMZŐI•225 m²-es, háromszintes ikerház•Amerikai konyhás nappali + 4 hálószoba•3 fürdőszoba – nincs reggeli kompromisszum•Hatalmas panorámás teraszok•2 állásos mélygarázs•Kertkapcsolat + saját medence ELHELYEZKEDÉS – NYUGALOM, PANORÁMA, GYORS ELÉRHETŐSÉG•Aranyhegy egyik legjobb fekvésű utcájában•Délnyugati tájolás, elvehetetlen, nyitott panoráma•Aszfaltozott utca, rendezett környezet•Helyi buszmegálló 1 perc sétára•Autóval percek alatt: Bécsi út, Árpád híd•British School Budapest ~10 percItt nem kell választani a természet és a város között. KERT & KÜLTÉR•4,5 × 2,5 m-es (ill. 6 × 2,8 m-es) medence, gépházzal•Füvesített kert, Automata öntözőrendszer, csepegtető a növények alatt•Kerítéssel körbevett, intim udvarEz nem kert – ez egy privát pihenőzóna. SZINTEK ÁTGONDOLTAN FELÉPÍTVE-1. szint•Előszoba•2 állásos garázs•Gépészeti helyiség•Fürdőszoba•Dolgozó / moziszoba /konditeremFöldszint•Amerikai konyhás nappali és étkező•Panorámás terasz•FürdőszobaEmelet•3 hálószoba•2 fürdőszoba MŰSZAKI TARTALOM – VALÓDI LUXUS, NEM KOMPROMISSZUM•Mitsubishi Zubadan hőszivattyú•Mennyezeti hűtés–fűtés + padlófűtés•Födémbe épített szellőztető rendszer•15 cm grafitos hőszigetelés•30 cm XPS tetőszigetelés•7 kamrás, 3 rétegű Kömmerling nyílászárók•Elektromos zsalúzia + pliszé szúnyoghálók•Hanggátló falazat az ikerfél között BELSŐ KIALAKÍTÁS – PRÉMIUM MÁRKÁK, IDŐTLEN STÍLUS•Nobilia német konyhabútor•Dekton (valódi kő) munkalap•Neff / Bosch gépek, Liebherr hűtő•Olasz, nagyméretű burkolatok (120×60)•Bugnatese, Grohe csaptelepek•Beépített szekrények, prémium világítás•Trussardi tapétákItt minden elem tudatos döntés eredménye. KINEK IDEÁLIS VÁLASZTÁS?•Családoknak, akik tágas, modern otthont keresnek•Vezetőknek, vállalkozóknak, akik értékelik a minőséget•Azoknak, akik kulcsrakész luxust szeretnének•Akik nem építkezni akarnak – hanem beköltözni ÖSSZEFOGLALÁSEz az ikerház:•panorámás•energiatakarékos•prémium minőségű•azonnal költözhetőItt valóban csak a bőröndöt kell behozni – minden más készen áll az élethez.Egyedi igényekre szabott lakáshitelekkel állunk rendelkezésére.Bankfüggetlen Hitelcentrumunk az országban elérhető összes bank és hitelintézet ajánlatát versenyezteti az Ön számára díjmentesen.Munkatársaink nagy szakmai tapasztalattal, teljes körű CSOK PLUSZ és OTTHON START PROGRAM ügyintézéssel várják Önt előre egyeztetett időpontban akár a normál munkaidő után is.

További adatok

Telekterület: 400 m2
Kert mérete: 400 m2
Erkély mérete: 41 m2
Felszereltség: -
Parkolás: -
Kilátás: -
Egyéb extrák:  
-
hirdetés

Hirdető adatai

Hirdető neve: Otthon Centrum
Kapcsolattartó: Köpösdi Zoltán
Hirdető telefonszáma: +36 70 388 6276
Honlap: -


Ingatlan hirdetés ajánlása

Copyright © Euro Ingatlanbank