Budapest, XII.kerület

 

Ingatlan adatai

Irányár: 450 000 000 Ft
Típus: ház
Kategória: eladó
Alapterület: 365 m2
Fűtés: gáz (cirko)
Állapota: -
Szobák száma: 8
Építés éve: 1989
Szintek száma: -

Részletes leírás

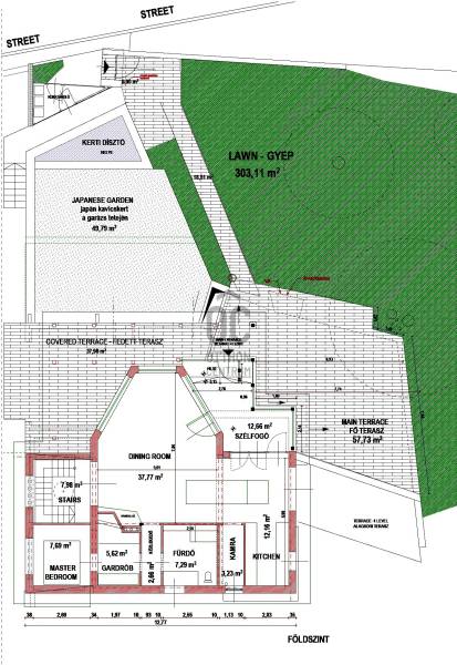
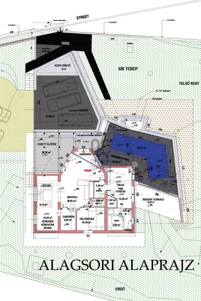
ERDŐVEL HATÁROS INTIMITÁS ÉS TEREK – EGYEDÜLÁLLÓ CSALÁDI HÁZ CSILLEBÉRCEN!Eladó a XII. kerület egyik legkülönlegesebb pontján, Csillebércen, egy 1514 m²-es telken fekvő, 365 m²-es, 4 szintes, 8 szobás családi ház, amely tökéletes választás nagycsaládosoknak, kétgenerációs otthonnak vagy akár prémium befektetésnek is.Az ingatlan legnagyobb értékei:A telek közvetlenül erdővel határos, így garantált a teljes intim szféra, nyugalom és zöld környezetNincs szomszéd, csak madárcsicsergés és természetGondozott, gyönyörű kert, különleges fákkal, virágokkal – igazi kertimádóknak!A ház belső elrendezése:Földszint: amerikai konyhás tágas nappali, kamra, szülői master bedroomEmelet: 4 külön nyíló szoba, nagy fürdőszobaAlsó szint: wellness részleg beltéri medencével, szaunával, jakuzzival – akár külön lakrész is kialakíthatóPince szint: 3 fűtött tárolóhelyiség – ideális irodának, műhelynek, hobbiszobánakFőbb paraméterek:Telek: 1514 m²Ház: 365 m²8 szoba, 3 fürdőszobaWellness részleg (medence, szauna, jakuzzi)57 m²-es terasz – tökéletes családi reggelikhez vagy esti borozáshozPadlófűtéses gáz cirkó rendszerD-i tájolás, napfényes, világos terekRitka lehetőség a XII. kerületben: ez az egyetlen eladó családi ház, amely ilyen méretű telekkel és erdőkapcsolattal rendelkezik!Ez az otthon nem csupán egy ingatlan, hanem egy életstílus. Ha fontos a tér, a természet közelsége és a privát nyugalom, ne hagyd ki ezt a lehetőséget!Álomotthon vár Önre – kérjen időpontot még ma!

További adatok

Telekterület: 1 514 m2
Kert mérete: 1 514 m2
Erkély mérete: 58 m2
Felszereltség: -
Parkolás: -
Kilátás: -
Egyéb extrák:  
-
hirdetés

Hirdető adatai

Hirdető neve: Otthon Centrum
Kapcsolattartó: Szántai Andrea
Hirdető telefonszáma: +36 70 388 5391
Honlap: -


Ingatlan hirdetés ajánlása

Copyright © Euro Ingatlanbank