Veszprém megye, Ábrahámhegy

 

Ingatlan adatai

Irányár: 76 137 400 Ft
Típus: nyaraló
Kategória: eladó
Alapterület: 70 m2
Fűtés: egyéb
Állapota: -
Szobák száma: 3
Építés éve: 1980
Szintek száma: -

Részletes leírás

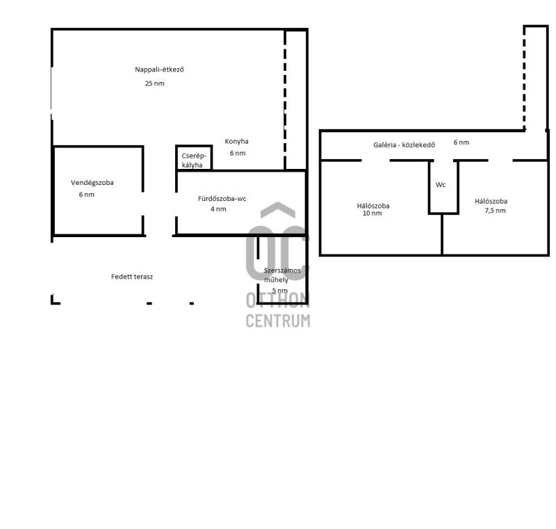
Ábrahámhegyen, a Balaton partjától mindössze 50 méterre, a strand bejáratától 30 méternyire eladó, ez a saroktelki, csodás kis nyaraló!Fantasztikus elhelyezkedése révén igazi álomotthon a nyári tartózkodásra!A kert 600 nm-es, amely üdülőterületi elhelyezkedése révén 20%-ban beépíthető. Egész évben gondozott, az utca felé magasan, élő zölddel keretezett, így a kertbe senki nem lát be. Kis kapu nyílik a strand felé, így a lehető legkényelmesebb a lejutás a partra, gyalogosan mintegy 3 perc alatt a vízben úszhatunk.Jelenleg az épület egy 1985-ben, kő alapra telepített, könnyűszerkezetes típusház, amelynek hatalmas déli terasza és egy fedett, így beépíthető része is van. A ház jelenlegi felosztásában 42 nm alapterületű, plusz 28 nm-es beépített tetőtérrel rendelkezik. Ezen felül a terasz és egy kis műhely még 16,5 nm.A földszinten nagy, egylégterű nappali-étkező-konyha van, a terasz felé dupla teraszajtóval egybenyitható a kinti térrel. Vendégszoba és fürdőszoba található még itt, a nappaliban pedig egy csodás cserépkályha, amely a téli időszak alatt is befűti a házat.Az emelet galériás kialakítású, egy nagyobb és egy kisebb hálószoba van itt, plusz wc, a szobákban mosdók és gardrób van. Bájos, otthonos hangulatú, nagyon szeretett és jól karbantartott ingatlan, amely idén is friss külső festést kapott a fa felületeken. Családi okokból kerül eladásra, a tulajdonos a vételárat euróban várja.

További adatok

Telekterület: 598 m2
Kert mérete: 598 m2
Erkély mérete: -
Felszereltség: -
Parkolás: -
Kilátás: -
Egyéb extrák:  
-
hirdetés

Hirdető adatai

Hirdető neve: Otthon Centrum
Kapcsolattartó: Csesznák Veronika
Hirdető telefonszáma: +36 70 412 5136
Honlap: -


Ingatlan hirdetés ajánlása

Copyright © Euro Ingatlanbank