Budapest, XVIII.kerület

 

Ingatlan adatai

Irányár: 189 000 000 Ft
Típus: ház
Kategória: eladó
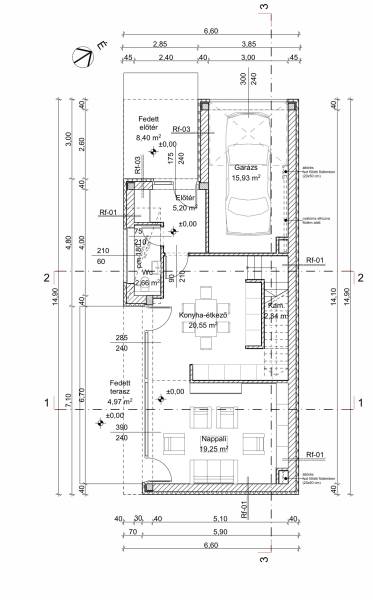
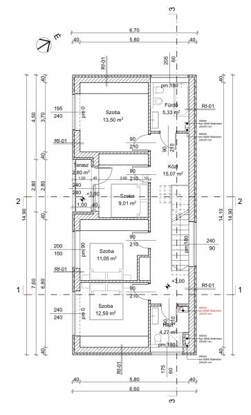
Alapterület: 150 m2
Fűtés: -
Állapota: új
Szobák száma: 4
Építés éve: 2025
Szintek száma: -

Részletes leírás

ELADÓ ÚJ ÉPÍTÉSŰ MINIMÁL STÍLUSÚ ,CSALÁDI HÁZAK ,MAGAS MŰSZAKI TARTALOMMAL!XVIII. kerület új, luxus lakóparkjában 140-150m2-es, nappali 3, 4 szobás önálló családi házak 2 fürdőszobával,3 WC-vel, erkélyekkel ,teraszokkal ,garázzsal, gépkocsibeállóval,használatba vételi engedéllyel, 400 m2-es összközműves telken 2026. március végi átadással kulcsrakészen eladó.A házak fűtése Mitshubishi hőszivattyúval, padlófűtés mindenhol helyiségenkénti vezérlés előkészítéssel, óriási panoráma ablakokkal, beépített fokozott hőszigetelésű redőnytokokkal, emelő-toló (7méter széles) terasz ajtókkal. Bejárati ajtók 2,4 m magas alumínium szerkezetű, egyedi színezésű kívül- belül, opál üvegezéssel 3 rtg.-ű, dupla biztonsági zárral ellátott.Beépített design csaptelepek, egyedi fürdőszoba szekrényekkel, design szaniterek, Geberit folyókákkal, síkba záródó egyedi belső ajtókkal, kulcslyuk nélküli, design kilincsekkel. Kiépített Okos Otthon, nagy értőképernyős riasztóval, arcfelismerős kaputelefonnal, hűtő-fűtő klímák, elektromos kapuk, elektromos garázsajtók.Beépített konyhabútor ( beépített Blanco mosogató, kerámialap, tűzhely, páraelszívó, mosogatógép stb.), olasz márvány burkolatokkal.A padló és falburkolás hatalmas lapburkolatokkal , Egger gyártmányú vízálló fózolt parketta.Kerítések, korlátok egyedileg gyártott acélszerkezetek, horganyzott és színterezett kivitelűek.Monolit födém mindenhol, emeleten álmennyezet készült ,rejtett függöny előkészítéssel, hálószobákban hangulatvilágítással és egyéb design elemekkel, nappaliban elektromos függöny előkészítéssel.Épület körül nagy méretű trendi térburkolattal, növény sáv elválasztó szegélyekkel, szigetelt kerti tároló. Lapos tetőre jutás 3 rétegű üvegezésű Velux kupolán keresztül történik, belső vízelvezetéssel, szikkasztókkal.Jelenleg többféle típusú ház van eladó, az árak a ház méretétől ,szobaszámától,felszereltségétől változik 189mft- 239mft között !Magyarország piacvezető hitelközvetítője által egyedi kamatkedvezményekkel és bankfüggetlen, díjmentes hitelügyintézéssel is segítjük vásárlását. CSOK plusz hitel és zöld hitel is igénybe vehető az ingatlanra. Amennyiben minimum 25 millió Ft. összegű ingatlanfedezetes hitelt vesz igénybe általunk 500 Euro értékű Club Karos Spa**** wellness utalványt adunk ajándékba. (Az akció kizárólag a Money Network ügynökhálózatán keresztül beadott és folyósított jelzáloghitelekre érvényes.) Hívjon bizalommal!

További adatok

Telekterület: 400 m2
Kert mérete: 400 m2
Erkély mérete: 8 m2
Felszereltség: -
Parkolás: -
Kilátás: -
Egyéb extrák:  
-
hirdetés

Hirdető adatai

Hirdető neve: RARIK-1986 Kft.
Kapcsolattartó: Kabát József
Hirdető telefonszáma: 06-70-542-1053
Honlap: -


Ingatlan hirdetés ajánlása

Copyright © Euro Ingatlanbank