Budapest, X.kerület

 

Ingatlan adatai

Irányár: 159 900 000 Ft
Típus: ház
Kategória: eladó
Alapterület: 122 m2
Fűtés: -
Állapota: új
Szobák száma: 4
Építés éve: 2026
Szintek száma: -

Részletes leírás

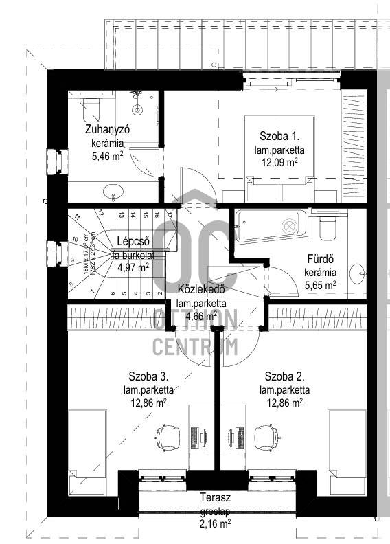
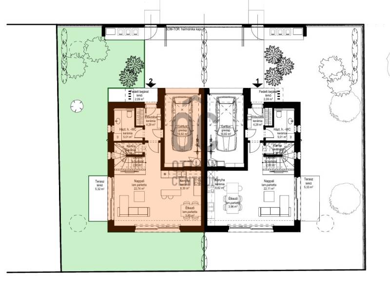
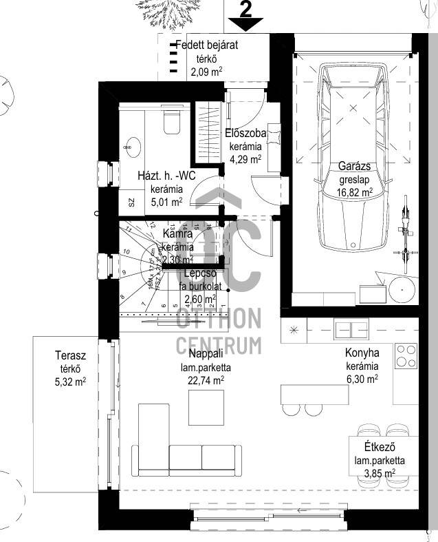
Exkluzív lehetőség azok számára, akik minőségi, XXI. századi otthont keresnek a belvároshoz közel, mégis egy nyugodt, családias környezetben.A csendes mellékutcában elhelyezkedő, prémium műszaki tartalommal rendelkező ikerház minden igényt kielégít – a modern életstílus jegyében.Kiemelkedő adottságok és átgondolt tervezésAz ingatlan a legmodernebb műszaki elvárások szerint készül, kiváló minőségű anyagok és prémium gépészeti megoldások alkalmazásával. A telek adottságai maximálisan kihasználásra kerültek, így egy esztétikus, funkcionális és hosszú távon értékálló családi otthon születik.A hasznos alapterület 122 m², két szinten:Földszint:- Tágas, 33 m²-es amerikai konyhás nappali, közvetlen teraszkapcsolattal és kerttel- Zuhanyzó + WC- Háztartási helyiség- Nagyméretű, fedett garázs – akár nagyobb autó számára is ideálisEmelet- 3 kényelmes hálószoba- 2 modern fürdőszobaA házhoz tartozó 231 m²-es privát kert igazi oázis, mely teljes intimitást biztosít, így tökéletes lehet családoknak, pihenéshez vagy akár kertészkedéshez is.Prémium műszaki tartalom- 30 cm Porotherm főfalak- 3 rétegű, hőszigetelt műanyag nyílászárók- Monolit vasbeton födém- Terrán Zenit Max Carbon tetőcserép- 15 cm homlokzati hőszigetelés, korszerű energetikai besorolással- Hőszivattyús rendszer, mennyezeti fűtés-hűtés- Minőségi burkolatok, térkövezett udvarExtrák, amelyek valódi kényelmet adnak- Okosotthon rendszer- Elektromos redőnyök- Kamera- és riasztórendszer előkészítés- Videókaputelefon- Elektromos kapu- Öntözőrendszer- Elektromos autótöltő kiépítése- WPC kerítés-Rejtett- és udvarvilágítás- Légtechnika- Teljes digitális átláthatóság az építkezés soránA PlanRadar rendszernek köszönhetően Ön:- Valós időben követheti az építkezés minden lépését- Kéthetente részletes, fotókkal ellátott jelentést kap- A projekt végén minden dokumentumot digitálisan átvehet egy biztonságos felületenFinanszírozásAz ingatlan hitelre is megvásárolható, ügyfeleink számára díjmentes hitelügyintézéssel, minden hazai bank kínálatából.Állami támogatások is igénybe vehetők!Várható átadás: 2026. III. negyedévNe maradjon le!Ilyen színvonalú, modern és biztonságos otthon ritkán kerül a piacra. Kiváló választás családoknak, pároknak és mindenkinek, aki igényes, hosszú távon értékálló ingatlant keres.Forduljon hozzám bizalommal a hét bármely napján!

További adatok

Telekterület: 231 m2
Kert mérete: 231 m2
Erkély mérete: 7 m2
Felszereltség: -
Parkolás: -
Kilátás: -
Egyéb extrák:  
-
hirdetés

Hirdető adatai

Hirdető neve: Otthon Centrum
Kapcsolattartó: Pomucz-Nagy Anita
Hirdető telefonszáma: +36 70 469 3296
Honlap: -


Ingatlan hirdetés ajánlása

Copyright © Euro Ingatlanbank