Budapest, XIV.kerület

 

Ingatlan adatai

Irányár: 310 000 000 Ft
Típus: ház
Kategória: eladó
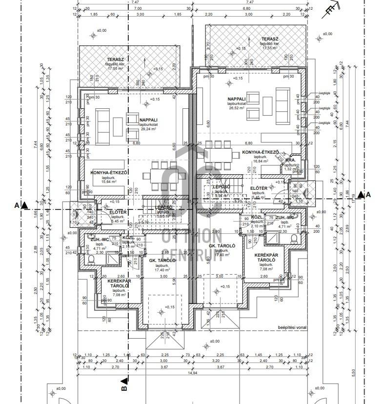
Alapterület: 180 m2
Fűtés: -
Állapota: új
Szobák száma: 5
Építés éve: 2026
Szintek száma: -

Részletes leírás

Eladó nettó 180 nm-es, Új építésű ikerház Zugló Alsórákos részén, csendes mellékutcában – külön 350 nm-es telekrésszel, garázzsal,beállóval, hőszivattyús hűtéssel-fűtéssel.Mindkét ingatlanhoz saját telekrész, fedett garázs, valamint felszíni parkoló tartozik.Az ingatlanokhoz külön-külön \"H\" tarifás hőszivattyús rendszer, padlófűtés, valamint mennyezeti hűtés-fűtés kerül beépítésre.A kivitelezés során prémium minőségű anyagokat, korszerű szigeteléseket és energiatakarékos megoldásokat használnak.A burkolatok, szaniterek és egyéb anyagok választhatóak, belső falazat kérésre változtathatóak.Kérésre elküldöm a műszaki tartalmat.Átadás kulcsrakész állapotba.Várható átadás: 2026 június.

További adatok

Telekterület: 350 m2
Kert mérete: 350 m2
Erkély mérete: 35 m2
Felszereltség: -
Parkolás: -
Kilátás: -
Egyéb extrák:  
-
hirdetés

Hirdető adatai

Hirdető neve: Otthon Centrum
Kapcsolattartó: Boros László
Hirdető telefonszáma: +36 70 716 8496
Honlap: -


Ingatlan hirdetés ajánlása

Copyright © Euro Ingatlanbank