Budapest, III.kerület

 

Ingatlan adatai

Irányár: 550 000 Ft/hó
Típus: ház
Kategória: kiadó
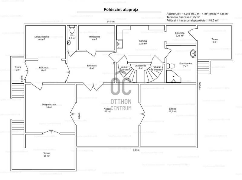
Alapterület: 200 m2
Fűtés: gáz (cirko)
Állapota: felújítást igényel
Szobák száma: 8
Építés éve: 1970
Szintek száma: -

Részletes leírás

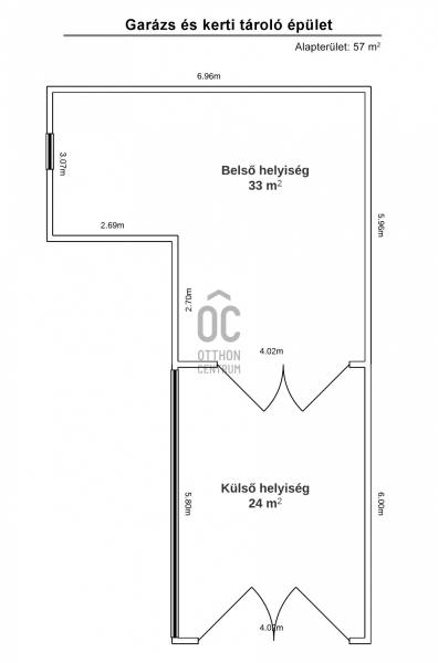
Kiadó ház Testvérhegy – kerttel, fedett tárolóval és garázzsalBudapest III. kerületében, Testvérhegy kiváló elhelyezkedésű részén kínálunk bérbeadásra egy önálló családi házat, amely ideális választás hosszú távra cégeknek dolgozói elszállásolásra, vagy nagyobb családok számára kényelmes otthonként.A házhoz saját kert, fedett kerti tároló és garázs is tartozik, így a mindennapi használat kényelmes és jól szervezhető.A környék infrastruktúrája és közlekedése kiemelkedő: a közelben üzletek, szolgáltatások, éttermek, valamint buszmegálló található, így könnyen elérhető a város bármely pontja.A stabil környezet és a jó megközelíthetőség miatt a ház hosszú távú, megbízható bérleti lehetőséget kínál.KKV Hitelezéssel akár bérlemény felújítására is tudunk segítséget nyújtani, így akár apartmanház is kialakítható egy hosszútávú rugalmas bérleti konstrukció mellett.Ha bármi kérdése van kérem jelezzen, hogy mihamarabb tudjunk segíteni.

További adatok

Telekterület: 1 047 m2
Kert mérete: 1 047 m2
Erkély mérete: -
Felszereltség: -
Parkolás: -
Kilátás: -
Egyéb extrák:  
-
hirdetés

Hirdető adatai

Hirdető neve: Otthon Centrum
Kapcsolattartó: Pongrácz László
Hirdető telefonszáma: +36 70 716 8371
Honlap: -


Ingatlan hirdetés ajánlása

Copyright © Euro Ingatlanbank