Budapest, X.kerület

 

Ingatlan adatai

Irányár: 265 000 000 Ft
Típus: ház
Kategória: eladó
Alapterület: 160 m2
Fűtés: gáz (cirko)
Állapota: -
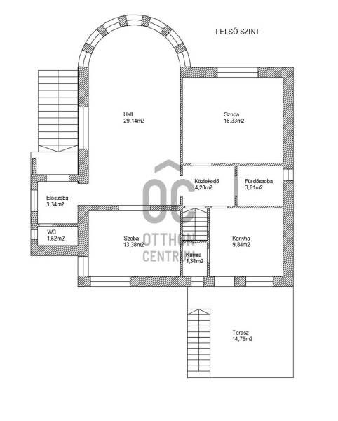
Szobák száma: 7
Építés éve: 1965
Szintek száma: -

Részletes leírás

Eladásra kínálunk Budapest X. kerületében, Óhegy csendes, biztonságos részén egy 160 m²-es, többgenerációs családi házat, amely számtalan lehetőséget rejt magában – akár két külön lakásként, akár vállalkozás, rendelő vagy iroda céljára is kiváló választás!Főbb jellemzői:✓ tágas világos terek✓ 2 bejárattal 2 külön lakóegység✓ 2 nappali, 2 konyha, 2 fürdő, 3 WC✓ tárolók minden szinten✓ többgenerációs✓ akadálymenetes lépcső✓ biztonságos környék✓ minden a közelben✓ ritkaságnak számító nagy kert✓ fedett kocsi beálló, további 3-4 parkolási lehetőség az udvaron✓ két utcáról is megközelíthető udvar✓ körbejárható ingatlan✓ műanyag nyílászárók✓ takarékos cirkó kazán, padlófűtés✓ az udvarból megközelíthető tágas tároló a terasz alatt✓ 1/1 tulajdon, tehermentes✓ azonnal költözhető

További adatok

Telekterület: 735 m2
Kert mérete: 735 m2
Erkély mérete: 12 m2
Felszereltség: -
Parkolás: -
Kilátás: -
Egyéb extrák:  
-
hirdetés

Hirdető adatai

Hirdető neve: Otthon Centrum
Kapcsolattartó: Gömöri Gabriella
Hirdető telefonszáma: +36 70 388 5076
Honlap: -


Ingatlan hirdetés ajánlása

Copyright © Euro Ingatlanbank