Budapest, XV.kerület

Rákospalota 

Ingatlan adatai

Irányár: 140 000 000 Ft
Típus: ház
Kategória: eladó
Alapterület: 95 m2
Fűtés: -
Állapota: új
Szobák száma: 4
Építés éve: 2026
Szintek száma: -

Részletes leírás

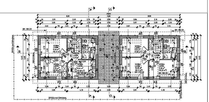
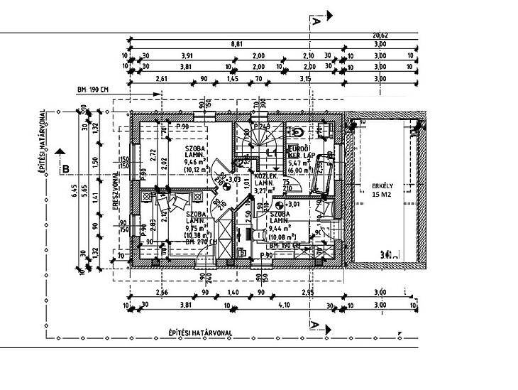
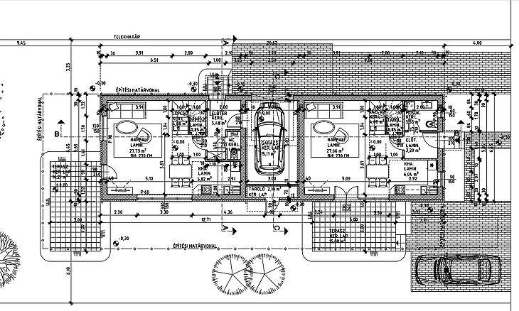
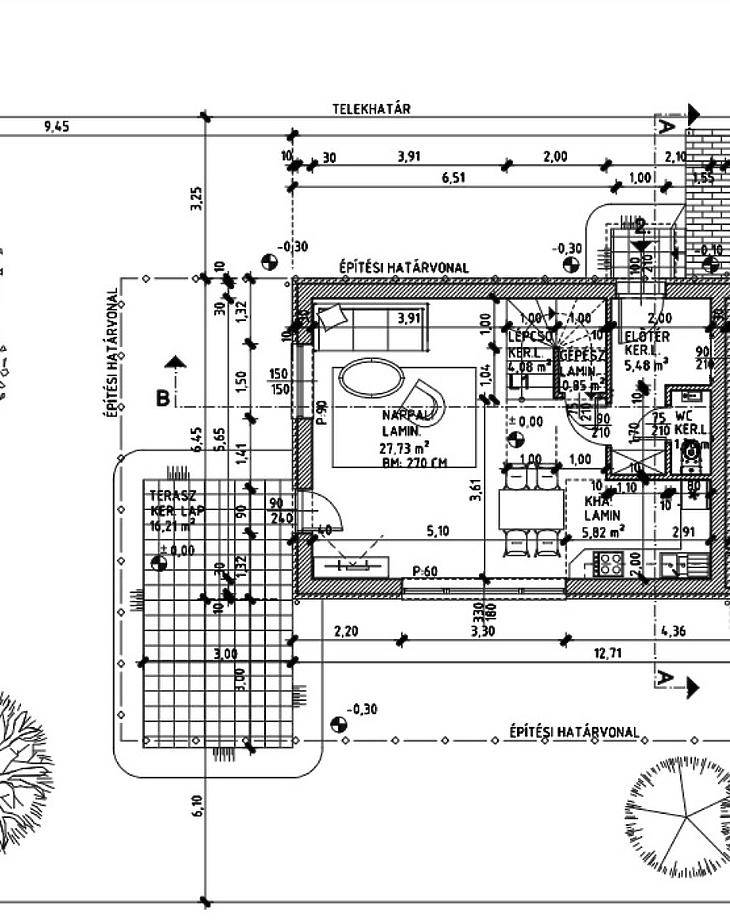
A XV.KERÜLETBEN: CSENDES KERTVÁROSI KÖRNYEZETBEN, ÚJ ÉPÍTÉSŰ, AMERIKAI KONYHÁS NAPPALIS, 3 HÁLÓSZOBÁS, NETT: 95 M2, KÉTSZINTES IKERHÁZFÉL, 327 M2 TELEKKEL, TÁGAS 15 M2 TERASSZAL, AUTÓBEÁLLÓVAL.A KÖRNYÉK:Kertváros egyik csendes utcája, családi házas környezet, jó szomszédsággal, kiváló közlekedéssel.A HÁZ JELLEMZŐI:A ház várható átadási határideje 2026 év vége.Az ingatlan kétszintes lesz, 30-as porotherm téglából épül, amelyet egy 10 cm-es grafitos szigeteléssel is ellátnak majd. Egy tágas amerikai konyhás nappali étkezővel, 3 háló, fürdőszoba és mosókonyha kerül kialakításra.Autóbeállási lehetőség adott, illetve egy hangulatos 15 m2-es terasz és tároló is rendelkezésre fog állni.A nyílászárók 5 légkamrás, 3 rétegű hőszigetelt ablakok lesznek. A fűtést kondenzációs kazán fogja biztosítani, a hideg burkolatok alatt padlófűtés kerül kialakításra, a szobákban pedig lapradiátorokat szerelnek fel. 2db hűtő-fűtő klíma is beszerelésre kerül.Igény esetén extra költséggel kérhető: elektromos redőny, kamera, riasztó, konyhabútor, beépített szekrények.Referencia ingatlanok megtekintése is lehetséges. Az ikerház másik fele is hasonló paraméterekkel fog rendelkezni, szintén eladó.FINANSZÍROZÁS:Az ingatlan TEHERMENTES! Banki finanszírozással is megvásárolható, melyben irodánk ingyenes tanácsadással áll rendelkezésükre!VEVŐINK RÉSZÉRE A KÖZVETÍTÉS DÍJTALAN !!A hirdetésben szereplő adatok tájékoztató jellegűek.

További adatok

Telekterület: 327 m2
Kert mérete: 327 m2
Erkély mérete: -
Felszereltség: -
Parkolás: -
Kilátás: -
Egyéb extrák:  
-
hirdetés

Hirdető adatai

Hirdető neve: MPD Hungary Kft.
Kapcsolattartó: Imobiliare Kft.
Hirdető telefonszáma: +3612305153
Honlap: -


Ingatlan hirdetés ajánlása

Copyright © Euro Ingatlanbank