Budapest, XX.kerület

 

Ingatlan adatai

Irányár: 189 000 000 Ft
Típus: ház
Kategória: eladó
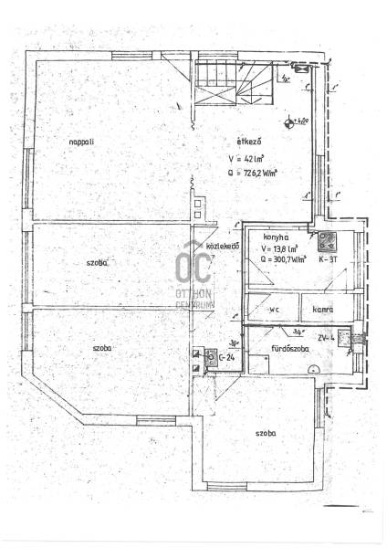
Alapterület: 238 m2
Fűtés: gáz (cirko)
Állapota: -
Szobák száma: 9
Építés éve: 1930
Szintek száma: -

Részletes leírás

Ez az ingatlan hirdetés kifejezetten azoknak a befektetőknek szól, akik értékes lehetőségeket keresnek a fővárosban, Budapest 20. kerületében, a felkapott Pacsirtatelep városrészben. A kínálatunkban szereplő használt ház 238 négyzetméteres alapterülettel rendelkezik, és egy 716 négyzetméteres telken helyezkedik el, amely ideális választás lehet családoknak, vagy akár bérbeadásra is. A ház 3 teljesen szeparált , különálló lakásra osztott, összesen egyébként 9 tágas szobával, amelyek lehetőséget adnak a különböző lakhatási igények kielégítésére, legyen szó akár többgenerációs családi otthonról, vagy apartmanok kialakításáról. Az ingatlan állapota átlagos, használható, tiszta és azonnal költözhető, de a bővítési lehetőségek széles spektrumot kínálnak, így a jövőbeni fejlesztések során a vásárlók saját igényeik szerint alakíthatják a teret. A ház fűtését gáz (cirko) biztosítja, míg a hűtésről klíma gondoskodik, így a nyári hónapokban is kellemes hőmérsékletet biztosít. A 15 négyzetméteres terasz ideális helyszín a pihenésre, míg a rendezett kert és a kerti tároló további előnyöket nyújtanak a szabadban való időtöltéshez. Az ingatlan kisállattal is költözhető, így a házikedvencek is otthonra lelhetnek itt. A környék ellátottsága kiváló, a központi elhelyezkedésnek köszönhetően minden szükséges szolgáltatás könnyedén elérhető. A közlekedési csomópont közelsége miatt a kitűnő közlekedés lehetőséget biztosít a város különböző részeinek gyors elérésére, legyen szó autós vagy tömegközlekedési megoldásokról. A Pacsirtatelep csendes, kertvárosi hangulata ideális választás lehet mindazok számára, akik a nyugodt környezetet keresik, mégis szeretnék élvezni a főváros előnyeit. Ez a tehermentes ingatlan nemcsak lakhatási célokra, hanem befektetési lehetőségként is vonzó, hiszen a Falusi Csok kompatibilis státusza révén különösen kedvező feltételekkel vásárolható meg. A nagy belmagasság pedig lehetőséget ad a belső terek kreatív átalakítására, így a potenciális vevők szabadon álmodhatják meg új otthonukat. Amennyiben Ön is érdeklődik a lehetőség iránt, vagy további kérdései lennének, bizalommal kereshet minket. Készen állunk arra, hogy segítsünk Önnek megtalálni a tökéletes ingatlant, amely megfelel az elképzeléseinek és befektetési céljainak.

További adatok

Telekterület: 716 m2
Kert mérete: 716 m2
Erkély mérete: 15 m2
Felszereltség: -
Parkolás: -
Kilátás: -
Egyéb extrák:  
-
hirdetés

Hirdető adatai

Hirdető neve: Otthon Centrum
Kapcsolattartó: Válenti Béla
Hirdető telefonszáma: +36 70 454 3450
Honlap: -


Ingatlan hirdetés ajánlása

Copyright © Euro Ingatlanbank