Budapest, II.kerület

 

Ingatlan adatai

Irányár: 649 000 000 Ft
Típus: ház
Kategória: eladó
Alapterület: 525 m2
Fűtés: egyéb
Állapota: -
Szobák száma: 12
Építés éve: 2000
Szintek száma: -

Részletes leírás

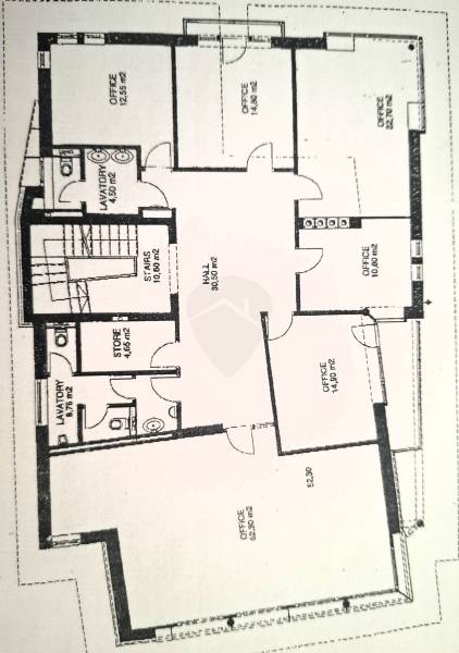
Eladó családi ház Hűvösvölgy zöldövezeti részén – 3 lakásos társasházzá alakíthatóBudapest II. kerületének egyik legnyugodtabb, legzöldebb részén, Hűvösvölgyben kínálok eladásra egy többgenerációs családi házat, amely kiváló lehetőség nagycsaládosoknak vagy befektetőknek.Az ingatlan főbb jellemzői:Építés éve: 2000-es évek elejeTelek mérete: 2306 m²Teljes lakóterület: 525 m²Alagsor: 69 m²Földszint: 178 m²Emelet: 182 m²Legfelső szint (tetőtér): 96 m²Garázsszint: 170 m² – akár 5 autó számára biztosított fedett beállási lehetőségA kertben további 7 gépkocsinak van kialakított szabadtéri parkolóhelyAz épületben két önálló lépcsőház található, így több lakás kialakítása is lehetségesTöbb klímaegység biztosítja a kényelmetRiasztórendszer és távfelügyelet gondoskodik az ingatlan biztonságárólEz az ingatlan ideális választás lehet több generáció együttélésére, de kis formalitással 3 önálló lakásos társasházzá is átalakítható, így kiváló befektetési lehetőség is egyben.

További adatok

Telekterület: 2 306 m2
Kert mérete: 2 306 m2
Erkély mérete: 20 m2
Felszereltség: -
Parkolás: -
Kilátás: kertre néző
Egyéb extrák:  
-
hirdetés

Hirdető adatai

Hirdető neve: Rock Home
Kapcsolattartó: Németi-Loósz Henriett
Hirdető telefonszáma: +36 70 412 5641
Honlap: -


Ingatlan hirdetés ajánlása

Copyright © Euro Ingatlanbank