Budapest, XVII.kerület

 

Ingatlan adatai

Irányár: 68 500 000 Ft
Típus: ház
Kategória: eladó
Alapterület: 57 m2
Fűtés: gáz (cirko)
Állapota: -
Szobák száma: 1+1
Építés éve: 1966
Szintek száma: -

Részletes leírás

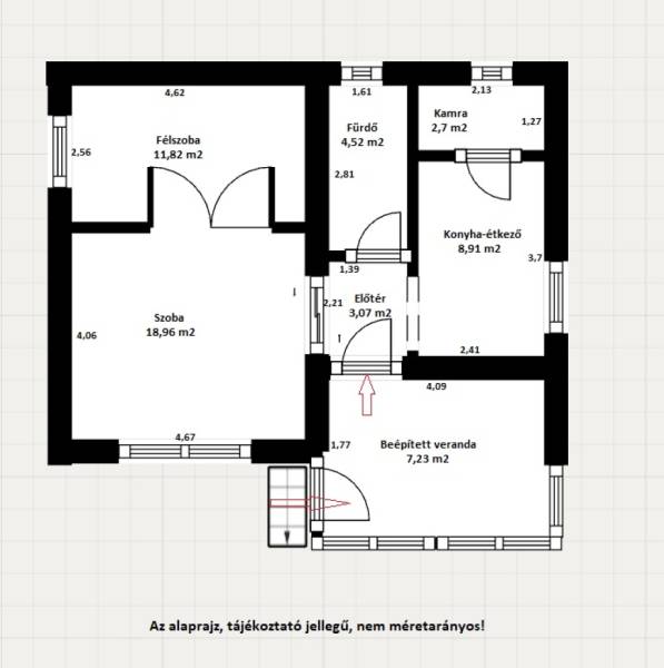
ÁR CSÖKKENTÉS!CSAK NÁLUNK!ÉPÍTÉSI TELEK, vagy CSALÁDIHÁZ lehetősséggel!Budapest XVII. kerületének, kedvelt Rákoscsaba -Újtelep részén, eladó egy több épületből álló, CSALÁDI INGATLAN.A fő épület tégla falazatú, az úgynevezett „ KÁDÁRKOCKA”, ami 1+1 szobás, nettó 57,21 m² alapterületű. A telken hátul lévő, szintén téglaépület, pince szintjén garázs és kazánház, az emeleti szinten, konyha, belépő, fürdő, szoba, és beépített terasz van. Ez is ALKALMAS LAKHATÁSRA! A két épület nettó alapterülete, 85,5 m².Az ingatlanok egy 16 méter széles, 713 m² -es összközműves telken helyezkednek el. Az övezeti besorolás szerint: Lke-1/11A telek végében, van egy bontandó tároló is. A főépület 1966-ban épült, falazata 30 cm tégla, részben 5 cm szigeteléssel. A födém fa gerendás, stukatúros. A tetőt cserép fedi. Az épületet, 2014-ben részben felújították, ekkor a tetőtartó szerkezetet lebontották és újra rakták. Az eredeti cserép lett visszarakva. A padlás, külső és belső feljárattal rendelkezik, pakolható. Ekkor cserélték ki a külső nyílászárókat, két rétegű, hőszigetelt műanyag ablakokra. Az ablakokat redőny védi. A fűtést, FÉG típusú fali gázkazánnal és vegyestüzelésű kazánnal oldják meg, amik a melléképület pince szintjén helyezkednek el. A melegvizet mindkét épületben, villanybojler állítja elő. Helységlista:- 18,96 m² szoba,- 11,82 m² félszoba,- 7,23 m² beépített veranda- gardrób,- 3,07 előtér,- 4,52 m² fürdő,- 8,91 m² konyha,- 2,7 m² kamra. A kert közepén, vagy egy ásott kút, ami gondozást igényel. HÉSZ előírás, amit építkezésnél be kell tartani: - beépítési mód: szabadon álló,- telek szélessége min: 16 m,- legnagyobb beépíthetőség terepszint alatt: 35%, - terepszint felett: 25%- legnagyobb szintterületi mutató : 0,4 -02,- legkisebb zöldterület: 60%,- legmagasabb épület magasság: 6 m.Az ingatlan aszfaltos úton megközelíthető, a tömegközlekedés jó. A Naplás úton 3 buszjárat is megy. Iskola, óvoda, vásárlási lehetőség a közelben. PER - TEHER – IGÉNY mentes, AZONNAL öklözhető!Jöjjön el, NÉZZE meg, TEGYEN ajánlatot!GDN HitelCentrum, KÖTELEZETTSÉG MENTESEN és DÍJMENTESEN, versenyezteti Önért a bankok hitelajánlatait. Ismerje meg a vissza nem térítendő állami támogatásokat!• CSOK+• babaváró,• hitel,• megtakarítás,• és egyéb banki tranzakcióban segítségére lehetünk!• Ügyvédi hátteret tudunk biztosítani!Ha az ingatlannal kapcsolatban bővebb felvilágosításra lenne szüksége, hívjon bizalommal, állok rendelkezésére!F.M.

További adatok

Telekterület: 713 m2
Kert mérete: 713 m2
Erkély mérete: -
Felszereltség: -
Parkolás: -
Kilátás: kertre néző
Egyéb extrák:  
-
hirdetés

Hirdető adatai

Hirdető neve: GDN Ingatlanhálózat
Kapcsolattartó: Fenyvesi Marianna
Hirdető telefonszáma: +36-20-981-3790
Honlap: -


Ingatlan hirdetés ajánlása

Copyright © Euro Ingatlanbank