Budapest, XV.kerület

Pestújhely 

Ingatlan adatai

Irányár: 175 000 000 Ft
Típus: ház
Kategória: eladó
Alapterület: 147 m2
Fűtés: egyéb
Állapota: új
Szobák száma: 4
Építés éve: 2024
Szintek száma: -

Részletes leírás

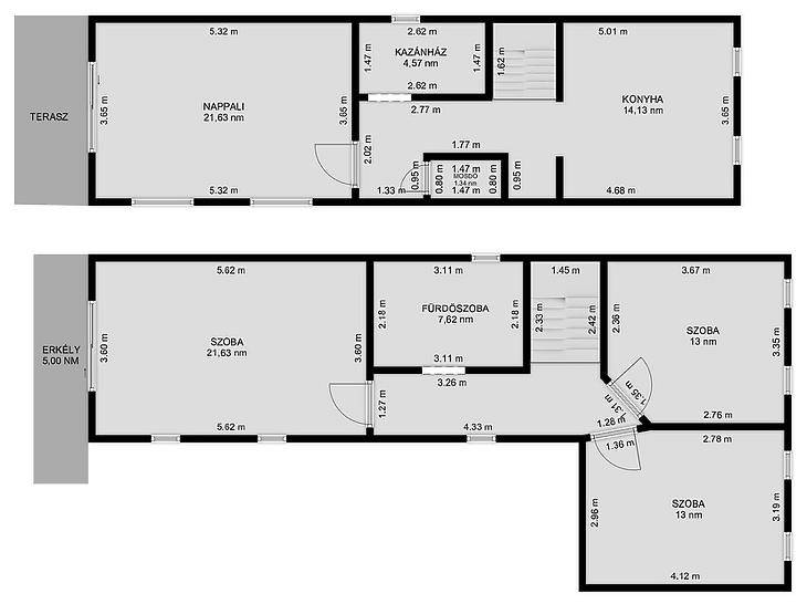
XV. KERÜLETBEN, PESTÚJHELYEN, 147 NM-ES NAPPALI PLUSZ 3 SZOBÁS 2024-BEN ÉPÜLT LUXUS CSALÁDI HÁZ 326 NM-ES TELEKKEL, FEDETT TERASSZAL, ERKÉLLYEL, TÖBB AUTÓ SZÁMÁRA BEÁLLÁSI LEHETŐSÉG.AZ ÉPÜLET JELLEMZŐI:Téglából épül kétszintes családi ház. A házban okos otthon rendszer, kamerarendszer és elektromos kapu lett kialakítva. A ház minden helyiségében hűtő-fűtő klíma került beszerelésre. A fűtésről puffer gázkazán és hőszivattyús padlófűtés gondoskodik. A+ besorolású energetikai tanúsítvánnyal rendelkezik. A 326 nm-es mediterrán stílusú kertben egy jakuzzi is helyet kapott. A bent lévő bútorzat és gépesítés a vételár részét képezi.A HÁZ ELRENDEZÉSE:Földszint:- előszoba- nappali- étkezős konyha- kazánház- mellékhelyiség- terasz a hátsó kertreEmelet:- 3 hálószoba- fürdőszoba zuhanyzóval és fürdőkáddal - erkélyPARKOLÁS:Telken belül több autó számára. KÖZLEKEDÉS:A közelben közlekedik a 231 busz és a 231B buszFINANSZÍROZÁS:Az ingatlan hitelre is megvásárolható. Bankfüggetlen tanácsadóink, az ország összes pénzintézete közül gyorsan és gördülékenyen találja meg az Önnek legmegfelelőbb konstrukciót, egyedi kedvezményekkel. A hitel közvetítés díjmentes. IRÁNYÁR: 175 M FtVEVŐINK RÉSZÉRE A KÖZVETÍTÉS DÍJTALAN!!A hirdetésben szereplő adatok tájékoztatás jellegűek!

További adatok

Telekterület: 326 m2
Kert mérete: 326 m2
Erkély mérete: -
Felszereltség: -
Parkolás: -
Kilátás: kertre néző
Egyéb extrák:  
-
hirdetés

Hirdető adatai

Hirdető neve: MPD Hungary Kft.
Kapcsolattartó: Újhely Ingatlan Kft.
Hirdető telefonszáma: +36202885981
Honlap: -


Ingatlan hirdetés ajánlása

Copyright © Euro Ingatlanbank