Budapest, II.kerület

 

Ingatlan adatai

Irányár: 279 000 000 Ft
Típus: ház
Kategória: eladó
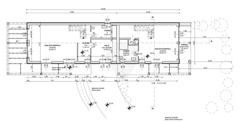
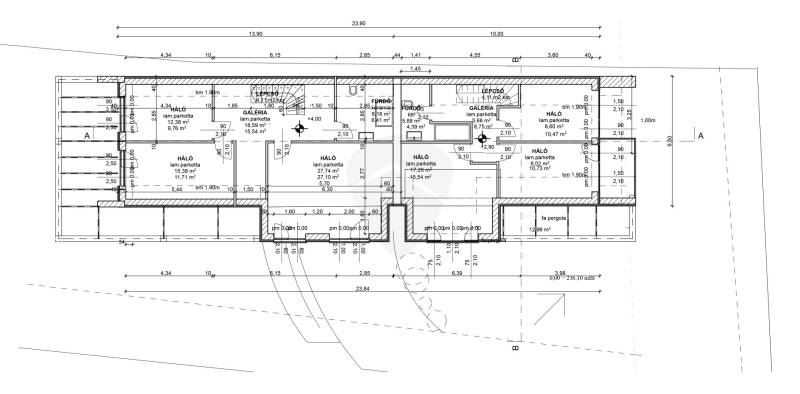
Alapterület: 160 m2
Fűtés: -
Állapota: új
Szobák száma: 5
Építés éve: 2024
Szintek száma: -

Részletes leírás

Budapest 02. kerületének egyik legkeresettebb és legszebb városrészében, Budaligeten kínálunk eladásra egy új építésű, modern lakóingatlant, amely ideális választás családosok számára. Az ingatlan a Hidegkúti úton helyezkedik el, egy csendes, zöldövezeti környezetben, ahol a természet közelsége és a városi élet kényelme tökéletes harmóniában találkozik. Az ingatlan alapterülete 160 négyzetméter, amely öt tágas szobát kínál, így bőven elegendő helyet biztosít a család minden tagjának. A két fürdőszoba (egy zuhanyzós és egy szabadon álló kádas )lehetővé teszi a kényelmes, mindennapi használatot, míg a 40 négyzetméteres terasz ideális helyszín a pihenésre és a szabadban eltöltött időre. A 600 négyzetméteres telek pedig biztosítja a privát kert lehetőségét, ahol szabadon élvezheti a természetet vagy akár baráti összejöveteleket tarthat. Az ingatlan új állapotban várja leendő tulajdonosát, modern hőszivattyús fűtési rendszerrel rendelkezik, amely nemcsak energiatakarékos, hanem környezetbarát megoldás is. A légkondicionáló berendezés garantálja a kellemes hőmérsékletet a nyári hónapokban is. A modern, gépesített konyha (Bosch gépekkel felszerelt) és a teremgarázsban található egy parkolóhely tovább növeli az ingatlan kényelmét. Budaliget kiváló közlekedési lehetőségekkel rendelkezik, hiszen a közeli buszmegállók révén a város tömegközlekedési hálózata könnyen elérhető. Az autós közlekedés is egyszerű, hiszen a belváros gyorsan megközelíthető. A környék biztonságos, családbarát, így ideális választás gyermekes családok számára. A környék nemcsak a közlekedési lehetőségei miatt vonzó, hanem a zöld területek és a természet közelsége miatt is. Számos kirándulóhely és sportolási lehetőség található a közelben, így a szabadidő eltöltése is kellemesen telhet. Bármilyen kérdése merülne fel az ingatlannal vagy a környékkel kapcsolatban, bizalommal kereshet minket. Szívesen állunk rendelkezésére, hogy segítsünk Önnek a legjobb döntés meghozatalában, és hogy a lehető legjobb ingatlant találja meg családja számára.

További adatok

Telekterület: 600 m2
Kert mérete: 600 m2
Erkély mérete: 40 m2
Felszereltség: -
Parkolás: -
Kilátás: udvari
Egyéb extrák:  
-
hirdetés

Hirdető adatai

Hirdető neve: Rock Home
Kapcsolattartó: Borsos Balázs
Hirdető telefonszáma: +36 70 467 6795
Honlap: -


Ingatlan hirdetés ajánlása

Copyright © Euro Ingatlanbank