Budapest, XVIII.kerület

 

Ingatlan adatai

Irányár: 130 000 000 Ft
Típus: ház
Kategória: eladó
Alapterület: 114 m2
Fűtés: -
Állapota: új
Szobák száma: 3
Építés éve: 2024
Szintek száma: -

Részletes leírás

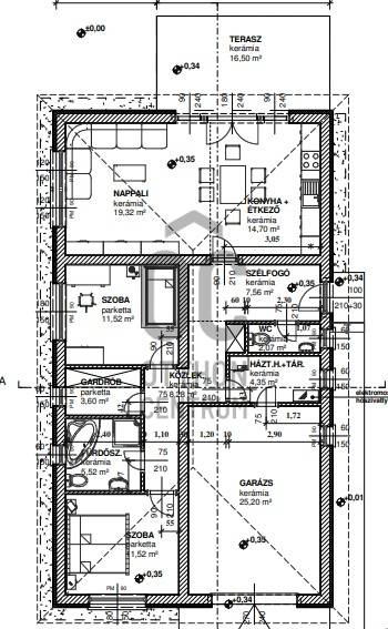
Eladásra kínálunk egy Új ÉPÍTÉSŰ, FÖLDSZINTES, ÖNÁLLÓ CSALÁDI HÁZAT garázzsal, 404 nm-es telekkel, Budapest XVIII. kerületben Ferihegy városrészben.A lakásba a jobboldali oldalkert felől megközelíthető szélfogó helyiségen és a gépkocsi-tárolón keresztül juthatunk be. A szélfogóból jutunk a hátsókert fel elhelyezkedő nappali – étkező –konyha helyiség-együttes, melyből egy teraszon át közvetlenül a kertbe juthatunk. A szélfogóból nyílik még egy WC helyiség, valamint egy közlekedő térbe juthatunk. A közlekedő térből nyílik két hálószoba, egy fürdőszoba és egy gardrób helyiség, valamint egy háztartási helyiség.A gépkocsi-tároló az utca irányába helyezkedik el, és a lakásból a háztartási helyiségen keresztül közelíthető meg.Az épület FŰTÉSÉT és a melegvíz ellátását a háztartási helyiségben elhelyezésre kerülő ELEKTROMOS HŐSZIVATTYÚVAL ÜZEMELTETETT KÖZPONTI-FŰTÉS RENDSZER biztosítja. A téli hőveszteség pótlása padlófűtéssel biztosított.Kialakításra kerül:•nappali 19,32 m2•konyha + étkező 14,70 m2•közlekedő 8,28 m2•szoba 11,52 m2•szoba 11,52 m2•gardrób 3,60 m2•fürdőszoba 5,52 m2•háztartási helys.+ tároló 4,35 m2•WC 2,07 m2•összesen: 88,44 m2 + garázs 25,20 m2 Az ÉPÜLET HASZNOS ALAPTERÜLETE összesen: 113,64 m2 + terasz 16,50 m2A 25m2-es garázsban kényelmesen elfér majd az autó mellett, a kerékpár és egyéb kerti szerszám is.A telek mérete 404 m2, privát élettér kertészkedésre, pihenésre és persze akár a gyerekeknek, unokáknak elfér a hinta, homokozó, trambulin stb.Kis forgalmú, csendes utca, nincs átmenő forgalom.Tömegközlekedés nagyon jó, Kőbánya-Kispest metróállomás 15 perc, Nyugati Pályaudvar 30-35 perc.A házat tőkeerős kivitelező építi, minőségi anyagokkal, precízen, megbízhatóan dolgozik. A vételár a kulcsrakész állapotra vonatkozik. A kivitelező referencia ingatlanjai a környéken megtekinthetőek.Pontos műszaki tájékoztató, és tervrajz áttekintése, személyes egyeztetés, helyszíni megtekintés miatt keressen bizalommal!Hitel, CSOK igénylésben díjmentes ügyintézéssel állunk rendelkezésére!Várom megtisztelő érdeklődésüket.

További adatok

Telekterület: 404 m2
Kert mérete: 404 m2
Erkély mérete: 17 m2
Felszereltség: -
Parkolás: -
Kilátás: -
Egyéb extrák:  
-
hirdetés

Hirdető adatai

Hirdető neve: Otthon Centrum
Kapcsolattartó: Kozmáné Buga Adrienne
Hirdető telefonszáma: +36 70 469 3986
Honlap: -


Ingatlan hirdetés ajánlása

Copyright © Euro Ingatlanbank