Budapest, XIV.kerület

 

Ingatlan adatai

Irányár: 285 000 000 Ft
Típus: ház
Kategória: eladó
Alapterület: 460 m2
Fűtés: egyéb
Állapota: -
Szobák száma: 13
Építés éve: 2009
Szintek száma: -

Részletes leírás

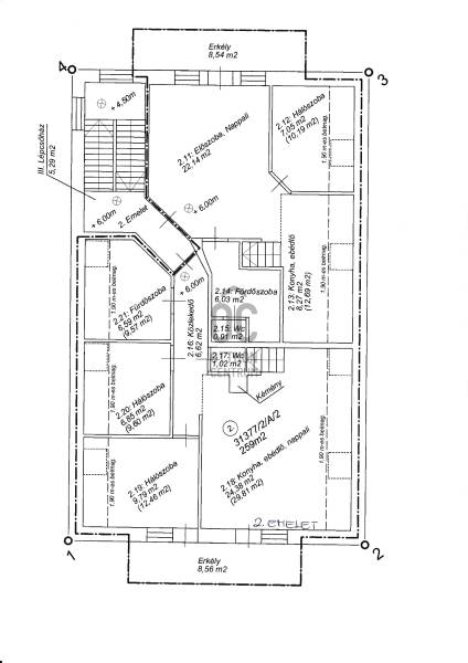
ÁRCSÖKKENÉS!HATALMAS TEREK- VÁLLALKOZÁSOK SZÁMÁRA IDEÁLIS LEHETTÖBB GENERÁCIÓ SZÁMÁRA IS JÓ VÁLASZTÁS LEHET! AZ ALSÓ SZINT AKADÁLYMENTESÍTETT. TÁRSASHÁZZÁ ALAKÍTHATÓ!Eladó Zuglóban, az Egressy út vonzáskörzetében egy többszintes , körbejárható , jó állapotú családi ház, amely egyűttal vállalkozásként is működik.-13 szoba+ 1 iroda-bruttó 529.72nm , netto: 460nm-4 terasz : 14.68nm+ 14.7nm+ 8.54nm+ 8.56nm= 46.48nm-606nm-es telek-jelenleg 3 , különbejáratú lakás van kialakítva konyhával, zuhanyzóval, toalettel , + 1, amely jelenleg irodaként/ ügyfélfogadóként működik, itt szintén zuhanyzó és wc is van.-a ház melegéről hőszivattyú és elektromos fűtés gondoskodik, (padlófűtés és klímák)- megfelelő hang- és hőszigetelés-müanyag nyílászárók-2009-ben épült a ház- a ház H tarifás-társasházzá alapítás folyamatban van-a garázs jelenleg műhelyként funkcionál-az udvaron játszótér került kialakításra-újépítésű lakópark mellett 145.8 m2-es autószervíz, amelyhez tartozik többek között egy pince rész (60 m2), iroda (12 m2) és ügyfélfogadó tér is (22,45 m2).Autók számára parkolási lehetőség a műhely területén és a ház előtt. A vállalkozás igény esetén megvehető, ez a ház árától függetlenül megbeszélés tárgyát képezi-az első emeleten kialakított lakrész nettó alapterülete 145.1 m2, amely a konyha és nappali mellett 5 szobát, 1 fürdőszobát és egy tágas gardróbot foglal magában. A lakáshoz két erkély tartozik.-a 2. emeleten és a beépített tetőtérben helyezkedik el, két külön nyíló, erkélyes, belső 2 szintes lakrész, (méretei : 121.96nm és 52.01nm) melyek jelenleg is bérbe vannak adva.- 4.lakás jelenleg irodaként/ ügyfélfogadóként működik, itt szintén zuhanyzó és wc is van.Méretei szintenként:-szuterén szint: 145.5nm-földszint: 64,83nm - ez a pince szint kétemeletnyi belmagassága miatt lett kialakítva, hogy elférjenek a magas autók és a munkagépek is a szervízben-első emelet: 145.5nm-második emelet: netto 1 21.96nm, itt már a tető döntött síkja miatt kevesebb a tényleges négyzetméternél-tetőtér: netto 52.01nm

További adatok

Telekterület: 606 m2
Kert mérete: 606 m2
Erkély mérete: 46 m2
Felszereltség: -
Parkolás: -
Kilátás: -
Egyéb extrák:  
-
hirdetés

Hirdető adatai

Hirdető neve: Otthon Centrum
Kapcsolattartó: Ónodi-Kiss Marina
Hirdető telefonszáma: +36 70 716 8721
Honlap: -


Ingatlan hirdetés ajánlása

Copyright © Euro Ingatlanbank