Pest megye, Érd

 

Ingatlan adatai

Irányár: 39 900 000 Ft
Típus: telek
Kategória: eladó
Alapterület: 1 150 m2
Fűtés: -
Állapota: -
Szobák száma: -
Építés éve: -
Szintek száma: -

Részletes leírás

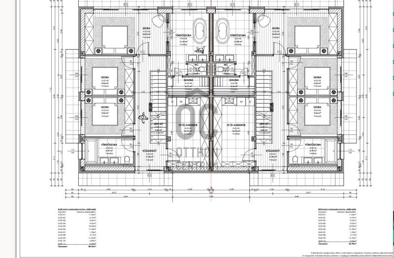
PANORÁMÁS 1150nm-es TELEK, TERVEKKEL, ENGEDÉLYEKKEL EGYÜTT ELADÓÉrd, Újfalu lakóövezeti részén, zsákutcában örök panorámás telek 30%-os beépíthetőséggel.A telek leejtős, a földmunkálatok nagy részét elvégezték, az alapot kiásták. A képeken látható ikerház terveit, engedélyeket és minden dokumentációt a vételár tartalmaz.-LKE-2 építési besorolás-Bontandó építmény nem található a telken.-Az építkezést azonnal el lehet kezdeni. -1150nm a telek mérete-Utcafonti szélesség 28m, a telek hosszúsága 40m-Áram a telken belül. Vízakna átadva csak szerződni kell. Víz és csatorna bekötés alatt.Könnyen megközelíthető,rendezett környék és remek lokáció.Az ingatlan per és tehermentes, hamar birtokba vehető.Amennyiben felkeltettem az érdeklődését, vagy bármely további kérdése akadna, keressen bizalommal!

További adatok

Telekterület: 1 150 m2
Kert mérete: -
Erkély mérete: -
Felszereltség: -
Parkolás: -
Kilátás: -
Egyéb extrák:  
-
hirdetés

Hirdető adatai

Hirdető neve: Otthon Centrum
Kapcsolattartó: Nagy Annamária
Hirdető telefonszáma: +36 70 412 3021
Honlap: -


Ingatlan hirdetés ajánlása

Copyright © Euro Ingatlanbank